Jupiter 82, Berkel En Rodenrijs

Omschrijving

Midden in een kindvriendelijke woonwijk met vrij uitzicht aan voor- en achterzijde, wie wil dat niet? Dan is deze woning een bezichtiging waard!

Deze ruime woning beschikt over vier slaapkamers en is ideaal voor starters en jonge gezinnen, zowel qua woonruimte als qua voorzieningen in de buurt.

Op loopafstand vind je diverse basisscholen, kinderopvang, speeltuin “De Kievit” en de buurtsupermarkt. Ook natuur- en recreatiegebied “De Groenzoom”, het gezellige centrum van Berkel en Rodenrijs, diverse sportfaciliteiten en het Annie M.G. Schmidtpark zijn gemakkelijk bereikbaar. Daarnaast zijn de grote steden van de Randstad goed bereikbaar via het openbaar vervoer (bus en RandstadRail) en de uitvalswegen (A12, A13, N209 en N472).

Kortom: inpakken, uitpakken en genieten!

Indeling

Begane grond:
Entree, hal met meterkast, toilet en trapopgang naar de eerste verdieping. Vanuit de hal is er toegang tot de woonkamer.

De ruime woonkamer is voorzien van een mooie laminaatvloer en biedt middels openslaande deuren toegang tot de achtertuin. De sfeervolle serre vormt een echte verlenging van de woonkamer en is volledig afsluitbaar met glazen schuifdeuren. De achtertuin is onderhoudsvriendelijk en voorzien van een vrijstaande berging en achterom.

Aan de voorzijde bevindt zich de keuken, uitgerust met een gasfornuis, afzuigkap, vaatwasser, combimagnetron, koel-vriescombinatie en heteluchtoven.

1e verdieping:
Overloop met toegang tot de twee slaapkamers.
De ruime ouderslaapkamer aan de achterzijde beschikt over vaste kasten, handmatige rolluiken en airconditioning. De slaapkamer aan de voorzijde is eveneens voorzien van handmatige rolluiken.

De uitgebouwde badkamer is compleet ingericht met een ligbad, toilet, douche, wastafel met meubel, handdoekradiator en mechanische ventilatie.

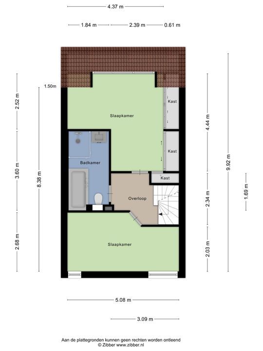
2e verdieping:
Overloop met toegang tot de twee slaapkamers.
Slaapkamer 3, aan de voorzijde gelegen.
Slaapkamer 4 ligt aan de achterzijde en is voorzien van de aansluitingen voor wasmachine en droger. Hier is ook de cv-ketel opgesteld.

Bijzonderheden:
- Ruime, speels ingedeelde woning
- Gelegen in kindvriendelijke woonwijk, nabij winkels, restaurants en openbaar vervoer.
- Sfeervolle serre.
- Actieve VvE, bijdrage € 267,- per maand
- Oplevering in overleg, conform roerende zaken.

In de koopovereenkomst worden de volgende extra clausules opgenomen:
- ouderdomsclausule (standaard bij woningen die ouder zijn dan 30 jaar);
- asbestclausule (standaard bij woningen die gebouwd zijn voor 1993).

Wij nodigen je van harte uit om deze leuke woning met eigen ogen te bewonderen.

Alle verstrekte informatie moet beschouwd worden als een uitnodiging tot het doen van een bod of om in onderhandeling te treden. De teksten en impressies zijn bedoeld om een goede indruk te geven van het object. Aan de inhoud ervan is de grootst mogelijke zorg besteed. Desondanks is alle informatie nadrukkelijk onder voorbehoud. Er kunnen geen rechten worden ontleend aan deze woninginformatie.

Koopovereenkomst pas rechtsgeldig na ondertekening:
Een mondelinge overeenstemming tussen de particuliere verkoper en de particuliere koper is niet rechtsgeldig. Met andere woorden: er is geen koop. Er is pas sprake van een rechtsgeldige koop als de particuliere verkoper en de particuliere koper de koopovereenkomst hebben ondertekend. Dit vloeit voort uit artikel 7:2 Burgerlijk Wetboek. Een bevestiging van de mondelinge overeenstemming per e-mail of een toegestuurd concept van de koopovereenkomst wordt overigens niet gezien als een 'ondertekende koopovereenkomst'.

Toelichtingsclausule Meetinstructie:
De woning is conform de Branchebrede Meetinstructie (BBMI) opgemeten. De Meetinstructie is bedoeld om een meer eenduidige manier van meten toe te passen voor het geven van een indicatie van de gebruiksoppervlakte. De Meetinstructie sluit verschillen in meetuitkomsten niet volledig uit, door bijvoorbeeld interpretatieverschillen, afrondingen of beperkingen bij het uitvoeren van de meting.
Wij zijn de makelaar van verkoper. Wij adviseren je jouw eigen makelaar mee te nemen voor jouw belangenbehartiging bij de aankoop van jouw toekomstige huis!

Kenmerken

Aanvaarding
Prijs
€ 450.000 k.k.
Status
Verkocht onder voorbehoud
Oplevering
In overleg
Adres
Jupiter 82
Postcode
2651 HK
Plaats
Berkel En Rodenrijs
Bouw
Soort woonhuis
Eengezinswoning, Tussenwoning
Soort bouw
Bestaande bouw
Bouwjaar
1973
Onderhoud binnen
Goed
Onderhoud buiten
Goed
Oppervlakten en inhoud
Woonoppervlakte
ca. 117m²
Perceeloppervlakte
ca. 98m²
Inhoud
ca. 413m³
Indeling
Aantal kamers
5
Aantal slaapkamers
4
Aantal badkamers
1
Aantal verdiepingen
3
Voorzieningen
Mechanische ventilatie, Rolluiken, TV-Kabel, Airconditioning, Glasvezel kabel
Energie
Energielabel
B
Isolatie
Dakisolatie, Muurisolatie, Vloerisolatie, Dubbel glas, Volledig geisoleerd
Warm water
C.V.-ketel
Verwarming
C.V.-ketel
Ketel
Intergas (2007, Combi-ketel, Eigendom)
Buitenruimte
Ligging
Aan rustige weg, In woonwijk
Tuin
Achtertuin
Achtertuin
Oost, 45m², 494×908cm
Schuur
Vrijstaand hout
Faciliteiten schuur
Voorzien van elektra

Plattegronden

Bekijk verloop van de zon

Uw browser ondersteunt geen WebGL

Locatie

[{"address": "Jupiter82","zipCode": "2651 HK","city": "Berkel En Rodenrijs","lat": 52.0058123,"lng": 4.4869673,"heading": 0,"pitch": 0}]

Wilt u meer informatie of een afspraak maken?

Bel 010 - 785 08 33, mail of gebruik het onderstaande formulier om contact met ons op te nemen.

Uw bericht is naar ons verzonden. Wij nemen zo snel mogelijk contact met u op.

Sorry, we kunnen helaas niet met zekerheid vaststellen of u een mens of een geautomatiseerde bot/spammer bent. Hierdoor kunnen we het formulier dat u heeft ingevuld niet verzenden. Probeer het opnieuw of neem direct contact op met de makelaar via e-mail.

Er is iets mis gegaan met het versturen van het formulier.
Controleer of u alle velden (goed) heeft ingevoerd en probeer het nog een keer.

Bij het verzenden van dit formulier geef ik toestemming mijn gegevens te verwerken op de manier zoals omschreven in het privacy statement.
recaptcha
reCAPTCHA
PrivacyTerms
van

Goedemorgen 👋

Benieuwd naar de waarde van uw huis?

U weet het al binnen 1 minuut. Laten we beginnen!

Wat is de reden van uw aanvraag?
Ik wil graag...

Er zijn meerdere antwoorden mogelijk.

Wanneer wilt u verhuizen?

We zijn er bijna 🎉

Om het rapport op te maken hebben we een aantal gegevens nodig

recaptcha
reCAPTCHA
PrivacyTerms

Uw woningwaarde wordt berekend... 🚀

loading

Bedankt %name%! De woningwaarde van %address% is berekend 🥳

Check uw mail voor het rapport!

success
Wat is mijn huis waard?