Noordeindseweg 338, Berkel En Rodenrijs

Omschrijving

Landelijk gelegen twee-onder-een-kapwoning op een perceel van 175 m², met een fraai en zonnig dakterras, tuin, garage en twee parkeerplaatsen op eigen terrein.

De woning beschikt over een ruime woonkeuken met toegang tot het dakterras, twee slaapkamers, een nette badkamer en daarnaast een zeer royaal souterrain van bijna 48 m². Ideaal als je aan huis werkt of als hobbyist die behoefte heeft aan een overdekte ruimte. De woning is gelegen aan de rand van Berkel en Rodenrijs.

De ligging is ideaal: rustig en landelijk, maar toch centraal ten opzichte van winkels, horeca en scholen. Natuur- en recreatiegebied De Groenzoom ligt op korte afstand en is perfect voor een wandeling of fietstocht. Daarnaast is de woning goed bereikbaar via diverse uitvalswegen richting Rotterdam, Den Haag en Delft (A12, A13, N209, N470 en N471).

Indeling

Begane grond
Aan de voorzijde van de woning kom je binnen in de hal met meterkast en trapopgang naar de eerste verdieping en het souterrain.

Vanuit de hal heb je toegang tot de woonkeuken met aansluitend de woonkamer, de toiletruimte en via de schuifpui tot het geweldige en zonnige dakterras (ZW). De grote eetkeuken is voorzien van een kookeiland, diverse luxe inbouwapparatuur en volop opbergmogelijkheden.

De lichte woonkamer is voorzien van een natuurstenen vloer en een gezellige gashaard. Via de schuifpui stap je het dakterras op met vrij uitzicht, waar je in de avonduren heerlijk kunt genieten van de ondergaande zon.

Eerste verdieping
Op deze etage vind je een overloop met toegang tot de vliering, twee slaapkamers en een ruime badkamer. De badkamer is voorzien van een dakkapel, wastafel, separate douche, ligbad en een tweede toilet.

Slaapkamer 1 (ca. 5,63 x 2,82 m), gelegen aan de voorzijde van de woning en voorzien van een inloopkast.
Slaapkamer 2 (ca. 4,20 x 2,79 m), eveneens gelegen aan de voorzijde van de woning.

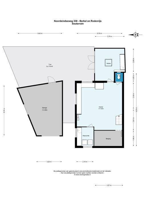
Souterrain
Het royale souterrain van ca. 48 m² heeft een hoogte van ca. 1,90 m en biedt toegang tot bergruimte, wasruimte, een derde toilet en de achtertuin. De achtertuin is tevens via een eigen entree bereikbaar en is voorzien van sierbestrating en een buitenkeuken.

Het energielabel is opgesteld vóór diverse verduurzamingsmaatregelen. Sindsdien zijn onder andere energiebesparende voorzieningen aangebracht, waardoor het energielabel bij een nieuwe opname mogelijk gunstiger kan uitvallen.

Bijzonderheden
- Garage en twee parkeerplaatsen op eigen terrein.
- Naast een tuin beschik je over een schitterend en zonnig dakterras (ZW).
- Verwarming en warm water middels cv-ketel (2021).
- 12 zonnepanelen.
- Hybride warmtepomp.
- Oplevering in overleg, conform lijst roerende zaken.

In de koopovereenkomst worden de volgende extra clausules opgenomen:
- Bij deze woning (ouder dan 30 jaar) is de ouderdomsclausule van toepassing.
- Bij deze woning (gebouwd voor 1993) is de asbestclausule van toepassing.

Wij nodigen je van harte uit om deze leuke woning met eigen ogen te bewonderen.

Alle verstrekte informatie moet beschouwd worden als een uitnodiging tot het doen van een bod of om in onderhandeling te treden. De teksten en impressies zijn bedoeld om een goede indruk te geven van het object. Aan de inhoud ervan is de grootst mogelijke zorg besteed. Desondanks is alle informatie nadrukkelijk onder voorbehoud. Er kunnen geen rechten worden ontleend aan deze woninginformatie.

Koopovereenkomst pas rechtsgeldig na ondertekening:
Een mondelinge overeenstemming tussen de particuliere verkoper en de particuliere koper is niet rechtsgeldig. Met andere woorden: er is geen koop. Er is pas sprake van een rechtsgeldige koop als de particuliere verkoper en de particuliere koper de koopovereenkomst hebben ondertekend. Dit vloeit voort uit artikel 7:2 Burgerlijk Wetboek. Een bevestiging van de mondelinge overeenstemming per e-mail of een toegestuurd concept van de koopovereenkomst wordt overigens niet gezien als een 'ondertekende koopovereenkomst'.

Toelichtingsclausule Meetinstructie:
De woning is conform de Branche brede Meetinstructie (BBMI) opgemeten. De Meetinstructie is bedoeld om een meer eenduidige manier van meten toe te passen voor het geven van een indicatie van de gebruiksoppervlakte. De Meetinstructie sluit verschillen in meetuitkomsten niet volledig uit, door bijvoorbeeld interpretatieverschillen, afrondingen of beperkingen bij het uitvoeren van de meting.

Wij zijn de makelaar van verkoper. Wij adviseren je jouw eigen makelaar mee te nemen voor jouw belangenbehartiging bij de aankoop van jouw toekomstige huis!

Kenmerken

Aanvaarding
Prijs
€ 525.000 k.k.
Status
Beschikbaar
Oplevering
In overleg
Adres
Noordeindseweg 338
Postcode
2651 LM
Plaats
Berkel En Rodenrijs
Bouw
Soort woonhuis
Eengezinswoning, 2-onder-1-kapwoning, Dijkwoning
Soort bouw
Bestaande bouw
Bouwjaar
1920
Onderhoud binnen
Goed
Onderhoud buiten
Goed
Oppervlakten en inhoud
Woonoppervlakte
ca. 90m²
Perceeloppervlakte
ca. 175m²
Overig oppervlakte
ca. 63m²
Inhoud
ca. 502m³
Indeling
Aantal kamers
6
Aantal slaapkamers
2
Aantal badkamers
1
Aantal verdiepingen
3
Voorzieningen
Mechanische ventilatie, TV-Kabel, Buitenzonwering, Rookkanaal, Schuifpui, Glasvezel kabel, Zonnepanelen
Energie
Energielabel
C
Isolatie
Dakisolatie, Muurisolatie, Vloerisolatie, HR-glas
Warm water
C.V.-ketel
Verwarming
C.V.-ketel, Warmtepomp
Ketel
Nefit (2021, Combi-ketel, Eigendom)
Buitenruimte
Ligging
Vrij uitzicht
Tuin
Achtertuin
Garage
Soort garage
Vrijstaand steen, Vrijstaand hout
Capaciteit
1

Plattegronden

Bekijk verloop van de zon

Uw browser ondersteunt geen WebGL

Locatie

[{"address": "Noordeindseweg338","zipCode": "2651 LM","city": "Berkel En Rodenrijs","lat": 52.018147,"lng": 4.484467,"heading": 0,"pitch": 0}]

Wilt u meer informatie of een afspraak maken?

Bel 010 - 785 08 33, mail of gebruik het onderstaande formulier om contact met ons op te nemen.

Uw bericht is naar ons verzonden. Wij nemen zo snel mogelijk contact met u op.

Sorry, we kunnen helaas niet met zekerheid vaststellen of u een mens of een geautomatiseerde bot/spammer bent. Hierdoor kunnen we het formulier dat u heeft ingevuld niet verzenden. Probeer het opnieuw of neem direct contact op met de makelaar via e-mail.

Er is iets mis gegaan met het versturen van het formulier.
Controleer of u alle velden (goed) heeft ingevoerd en probeer het nog een keer.

Bij het verzenden van dit formulier geef ik toestemming mijn gegevens te verwerken op de manier zoals omschreven in het privacy statement.
recaptcha
reCAPTCHA
PrivacyTerms
van

Goedenavond 👋

Benieuwd naar de waarde van uw huis?

U weet het al binnen 1 minuut. Laten we beginnen!

Wat is de reden van uw aanvraag?
Ik wil graag...

Er zijn meerdere antwoorden mogelijk.

Wanneer wilt u verhuizen?

We zijn er bijna 🎉

Om het rapport op te maken hebben we een aantal gegevens nodig

recaptcha
reCAPTCHA
PrivacyTerms

Uw woningwaarde wordt berekend... 🚀

loading

Bedankt %name%! De woningwaarde van %address% is berekend 🥳

Check uw mail voor het rapport!

success
Wat is mijn huis waard?