Castor 60, Berkel En Rodenrijs

Omschrijving

In de kindvriendelijke Sterrenbuurt ligt deze turn-key woning die werkelijk alles in huis heeft wat je je maar kunt wensen: een lichte woonkamer, moderne keuken en badkamer, maar liefst vijf slaapkamers en een heerlijke achtertuin op het zonnige zuiden.

De huidige eigenaren hebben de woning de afgelopen jaren met veel gevoel voor sfeer en warmte vernieuwd, opgeknapt en verbouwd. Het resultaat? Een instapklare woning waar je zó in kunt trekken.

De ligging is ideaal. Je woont hier op loopafstand van diverse basisscholen, kinderopvang, speeltuin De Kievit en de buurtsupermarkt. Ook natuur- en recreatiegebied De Groenzoom en het gezellige centrum van Berkel en Rodenrijs zijn eenvoudig per fiets bereikbaar, net als diverse sportfaciliteiten en het Annie M.G. Schmidtpark. Daarnaast zijn de grote steden in de Randstad goed bereikbaar via het openbaar vervoer (bus en RandstadRail) en de uitvalswegen (A12, A13, A16, N209 en N472).

Kortom: inpakken, uitpakken en genieten maar!

Indeling

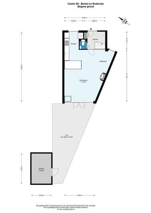
Begane grond:
Entree, hal met meterkast, modern toilet, trapopgang naar de eerste verdieping en toegang tot de woonkamer.

Aan de achterzijde bevindt zich de sfeervolle woonkamer. Dankzij het dakraam en de openslaande deuren is het hier heerlijk licht. De deuren geven toegang tot de zonnige achtertuin, gelegen op het zuidwesten. De woonkamer is voorzien van een elektrische haard en een pvc-vloer met comfortabele vloerverwarming.

De moderne keuken ligt aan de voorzijde van de woning en is uitgerust met diverse inbouwapparatuur, waaronder een vaatwasser, inductiekookplaat, afzuigkap, combi-oven, oven met stoomfunctie en een koel-vriescombinatie.

Eerste verdieping:
Overloop met toegang tot alle vertrekken.
Aan de voorzijde bevindt zich een ruime slaapkamer over de volle breedte van de woning.
Slaapkamer 2 ligt aan de achterzijde en beschikt over de aansluitingen voor de wasmachine en droger.
Slaapkamer 3, eveneens aan de achterzijde, is voorzien van praktische knieschotten voor extra bergruimte.

De moderne badkamer is compleet uitgevoerd met een douche, ligbad, wastafel, toilet, elektrische vloerverwarming en een spiegel met verlichting en verwarming.

Tweede verdieping:
Overloop met opstelplaats voor de cv-ketel.
Slaapkamer 4 bevindt zich aan de voorzijde.
Slaapkamer 5 ligt aan de achterzijde en beschikt over een wastafel.

Bijzonderheden:
- Instapklare woning met Energielabel A.
- Moderne keuken en badkamer
- Vloerverwarming op de begane grond en de badkamer
- 14 zonnepanelen
- Toplocatie met scholen, speeltuinen en supermarkt op loopafstand
- Actieve VvE met een bijdrage van € 289,80 per maand
- Oplevering in overleg, conform Lijst van Zaken.

In de koopovereenkomst worden de volgende extra clausules opgenomen:
- ouderdomsclausule (standaard bij woningen die ouder zijn dan 30 jaar);
- asbestclausule (standaard bij woningen die gebouwd zijn voor 1993).

Wij nodigen je van harte uit om deze instapklare woning met eigen ogen te bewonderen.

Alle verstrekte informatie moet beschouwd worden als een uitnodiging tot het doen van een bod of om in onderhandeling te treden. De teksten en impressies zijn bedoeld om een goede indruk te geven van het object. Aan de inhoud ervan is de grootst mogelijke zorg besteed. Desondanks is alle informatie nadrukkelijk onder voorbehoud. Er kunnen geen rechten worden ontleend aan deze woninginformatie.

Koopovereenkomst pas rechtsgeldig na ondertekening:
Een mondelinge overeenstemming tussen de particuliere verkoper en de particuliere koper is niet rechtsgeldig. Met andere woorden: er is geen koop. Er is pas sprake van een rechtsgeldige koop als de particuliere verkoper en de particuliere koper de koopovereenkomst hebben ondertekend. Dit vloeit voort uit artikel 7:2 Burgerlijk Wetboek. Een bevestiging van de mondelinge overeenstemming per e-mail of een toegestuurd concept van de koopovereenkomst wordt overigens niet gezien als een 'ondertekende koopovereenkomst'.

Toelichtingsclausule Meetinstructie:
De woning is conform de Branchebrede Meetinstructie (BBMI) opgemeten. De Meetinstructie is bedoeld om een meer eenduidige manier van meten toe te passen voor het geven van een indicatie van de gebruiksoppervlakte. De Meetinstructie sluit verschillen in meetuitkomsten niet volledig uit, door bijvoorbeeld interpretatieverschillen, afrondingen of beperkingen bij het uitvoeren van de meting.

Wij zijn de makelaar van verkoper. Wij adviseren je jouw eigen makelaar mee te nemen voor jouw belangenbehartiging bij de aankoop van jouw toekomstige huis!

Kenmerken

Aanvaarding
Prijs
€ 475.000 k.k.
Status
Beschikbaar
Oplevering
In overleg
Adres
Castor 60
Postcode
2651 GW
Plaats
Berkel En Rodenrijs
Bouw
Soort woonhuis
Eengezinswoning, Eindwoning
Soort bouw
Bestaande bouw
Bouwjaar
1973
Onderhoud binnen
Goed
Onderhoud buiten
Goed
Oppervlakten en inhoud
Woonoppervlakte
ca. 117m²
Perceeloppervlakte
ca. 95m²
Inhoud
ca. 387m³
Indeling
Aantal kamers
6
Aantal slaapkamers
5
Aantal badkamers
1
Aantal verdiepingen
3
Voorzieningen
Mechanische ventilatie, Buitenzonwering, Glasvezel kabel, Zonnepanelen
Energie
Energielabel
A
Warm water
C.V.-ketel
Verwarming
C.V.-ketel, Vloerverwarming gedeeltelijk
Ketel
Intergas (2007, Combi-ketel, Eigendom)
Buitenruimte
Ligging
Aan rustige weg, In woonwijk
Tuin
Achtertuin
Achtertuin
Zuidwest, 39m², 385×1012cm

Plattegronden

Bekijk verloop van de zon

Uw browser ondersteunt geen WebGL

Locatie

[{"address": "Castor60","zipCode": "2651 GW","city": "Berkel En Rodenrijs","lat": 52.003584,"lng": 4.485655,"heading": 0,"pitch": 0}]

Wilt u meer informatie of een afspraak maken?

Bel 010 - 785 08 33, mail of gebruik het onderstaande formulier om contact met ons op te nemen.

Uw bericht is naar ons verzonden. Wij nemen zo snel mogelijk contact met u op.

Sorry, we kunnen helaas niet met zekerheid vaststellen of u een mens of een geautomatiseerde bot/spammer bent. Hierdoor kunnen we het formulier dat u heeft ingevuld niet verzenden. Probeer het opnieuw of neem direct contact op met de makelaar via e-mail.

Er is iets mis gegaan met het versturen van het formulier.
Controleer of u alle velden (goed) heeft ingevoerd en probeer het nog een keer.

Bij het verzenden van dit formulier geef ik toestemming mijn gegevens te verwerken op de manier zoals omschreven in het privacy statement.
recaptcha
reCAPTCHA
PrivacyTerms
van

Goedemiddag 👋

Benieuwd naar de waarde van uw huis?

U weet het al binnen 1 minuut. Laten we beginnen!

Wat is de reden van uw aanvraag?
Ik wil graag...

Er zijn meerdere antwoorden mogelijk.

Wanneer wilt u verhuizen?

We zijn er bijna 🎉

Om het rapport op te maken hebben we een aantal gegevens nodig

recaptcha
reCAPTCHA
PrivacyTerms

Uw woningwaarde wordt berekend... 🚀

loading

Bedankt %name%! De woningwaarde van %address% is berekend 🥳

Check uw mail voor het rapport!

success
Wat is mijn huis waard?