Lingestraat 55, Berkel En Rodenrijs

Omschrijving

Op een prachtige centrale locatie in de wijk Meerpolder, aan een kindvriendelijke en autoluwe straat, ligt deze royale eengezinswoning met maar liefst 4 slaapkamers, 2 badkamers, een zonnige tuin op het zuiden, afgesloten berging én een parkeerplaats op eigen terrein. Vanuit de woning geniet je van vrij uitzicht over natuurgebied De Groenzoom.

Het natuurgebied De Groenzoom, met talrijke fiets- en wandelroutes, ligt voor de deur. Het gezellige centrum van Berkel en Rodenrijs is op de fiets te bereiken net als diverse sportfaciliteiten, speeltuin ''De Kieviet'', supermarkten en (basis-)scholen. Daarnaast zijn alle grote steden van de Randstad goed bereikbaar via het openbaar vervoer (bus en RandstadRail) en de uitvalswegen (A12, A13, A20, N209 en N472).

Wordt dit jouw nieuwe (t)huis? Maak snel een afspraak voor een bezichtiging!

Indeling

Begane grond:
Entree, hal met meterkast, toilet en trapopgang naar de eerste verdieping. Vanuit de hal is er toegang tot de keuken en de woonkamer.

De sfeervolle woonkamer is gelegen aan de achterzijde en voorzien van een houten parketvloer en een gezellige gashaard. Onder de trap bevindt zich een praktische trapkast. Aan de voorzijde vind je de eethoek en de nette L-vormige keuken, uitgerust met inductiekookplaat, afzuigkap, vaatwasser, Quooker met dispenser, koelkast, vriezer en een combi-oven.

Tuin:
Via de woonkamer stap je de ruime, zonnige achtertuin op het zuiden in. De tuin beschikt over een elektrisch zonnescherm en een tuinkast, ideaal voor het opbergen van tuingereedschap. Op het achtergelegen afgesloten binnenterrein vind je de vrijstaande berging en je eigen parkeerplaats.

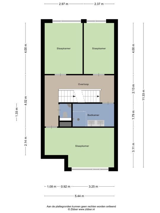
1e verdieping:
Overloop met separaat toilet en toegang tot drie slaapkamers.
Ruime slaapkamer aan de voorzijde (ca. 3,11 x 5,44 m) met fraai uitzicht over De Groenzoom.
Twee slaapkamers aan de achterzijde (ca. 4,00 x 2,97 m en ca. 4,00 x 2,37 m).

Alle slaapkamers zijn voorzien van een elektrisch rolluik. De moderne badkamer is uitgerust met een dubbele wastafel, douche, vloerverwarming en een handdoekradiator.

2e verdieping:
De overloop biedt toegang tot het dakterras aan de voorzijde, eveneens met prachtig uitzicht over De Groenzoom.
Ruime slaapkamer aan de achterzijde (ca. 3.61 x 5.44 m) is voorzien van twee elektrische rolluiken.
De tweede badkamer is uitgerust met een whirpool-ligbad met bubbels en verlichting, koelkastje, aansluitingen voor de wasmachine en droger, een wastafel en opstelplaats voor de cv-ketel.

Bijzonderheden:
- Royale eengezinswoning op een toplocatie in Meerpolder;
- Ruim dakterras met schitterend uitzicht;
- Zonnige achtertuin op het zuiden;
- 12 zonnepanelen;
- Eigen berging en parkeerplaats op het afgesloten binnenterrein;
- Maandelijkse VvE bijdrage: € 42,50
- Oplevering in overleg, Conform Lijst van Zaken.

Wij nodigen je van harte uit om deze leuke woning met eigen ogen te bewonderen.

Alle verstrekte informatie moet beschouwd worden als een uitnodiging tot het doen van een bod of om in onderhandeling te treden. De teksten en impressies zijn bedoeld om een goede indruk te geven van het object. Aan de inhoud ervan is de grootst mogelijke zorg besteed. Desondanks is alle informatie nadrukkelijk onder voorbehoud. Er kunnen geen rechten worden ontleend aan deze woninginformatie.

Koopovereenkomst pas rechtsgeldig na ondertekening:
Een mondelinge overeenstemming tussen de particuliere verkoper en de particuliere koper is niet rechtsgeldig. Met andere woorden: er is geen koop. Er is pas sprake van een rechtsgeldige koop als de particuliere verkoper en de particuliere koper de koopovereenkomst hebben ondertekend. Dit vloeit voort uit artikel 7:2 Burgerlijk Wetboek. Een bevestiging van de mondelinge overeenstemming per e-mail of een toegestuurd concept van de koopovereenkomst wordt overigens niet gezien als een 'ondertekende koopovereenkomst'.

Toelichtingsclausule Meetinstructie:
De woning is conform de Branchebrede Meetinstructie (BBMI) opgemeten. De Meetinstructie is bedoeld om een meer eenduidige manier van meten toe te passen voor het geven van een indicatie van de gebruiksoppervlakte. De Meetinstructie sluit verschillen in meetuitkomsten niet volledig uit, door bijvoorbeeld interpretatieverschillen, afrondingen of beperkingen bij het uitvoeren van de meting.

Wij zijn de makelaar van verkoper. Wij adviseren je jouw eigen makelaar mee te nemen voor jouw belangenbehartiging bij de aankoop van jouw toekomstige huis!

Kenmerken

Aanvaarding
Prijs
€ 675.000 k.k.
Status
Beschikbaar
Oplevering
In overleg
Adres
Lingestraat 55
Postcode
2652 AH
Plaats
Berkel En Rodenrijs
Bouw
Soort woonhuis
Eengezinswoning, Eindwoning
Soort bouw
Bestaande bouw
Bouwjaar
2009
Onderhoud binnen
Goed
Onderhoud buiten
Goed
Oppervlakten en inhoud
Woonoppervlakte
ca. 153m²
Perceeloppervlakte
ca. 134m²
Inhoud
ca. 540m³
Indeling
Aantal kamers
5
Aantal slaapkamers
4
Aantal badkamers
2
Aantal verdiepingen
3
Voorzieningen
Mechanische ventilatie, Rolluiken, Buitenzonwering, Glasvezel kabel, Zonnepanelen
Energie
Energielabel
A
Isolatie
Volledig geisoleerd, HR-glas
Warm water
C.V.-ketel
Verwarming
C.V.-ketel, Vloerverwarming gedeeltelijk
Ketel
Intergas (2009, Combi-ketel, Eigendom)
Buitenruimte
Ligging
In woonwijk, Vrij uitzicht
Tuin
Achtertuin, Voortuin
Achtertuin
Zuid, 46m², 557×832cm

Plattegronden

Bekijk verloop van de zon

Uw browser ondersteunt geen WebGL

Locatie

[{"address": "Lingestraat55","zipCode": "2652 AH","city": "Berkel En Rodenrijs","lat": 52.0009433,"lng": 4.4656549,"heading": 0,"pitch": 0}]

Wilt u meer informatie of een afspraak maken?

Bel 010 - 785 08 33, mail of gebruik het onderstaande formulier om contact met ons op te nemen.

Uw bericht is naar ons verzonden. Wij nemen zo snel mogelijk contact met u op.

Sorry, we kunnen helaas niet met zekerheid vaststellen of u een mens of een geautomatiseerde bot/spammer bent. Hierdoor kunnen we het formulier dat u heeft ingevuld niet verzenden. Probeer het opnieuw of neem direct contact op met de makelaar via e-mail.

Er is iets mis gegaan met het versturen van het formulier.
Controleer of u alle velden (goed) heeft ingevoerd en probeer het nog een keer.

Bij het verzenden van dit formulier geef ik toestemming mijn gegevens te verwerken op de manier zoals omschreven in het privacy statement.
recaptcha
reCAPTCHA
PrivacyTerms
van

Goedenavond 👋

Benieuwd naar de waarde van uw huis?

U weet het al binnen 1 minuut. Laten we beginnen!

Wat is de reden van uw aanvraag?
Ik wil graag...

Er zijn meerdere antwoorden mogelijk.

Wanneer wilt u verhuizen?

We zijn er bijna 🎉

Om het rapport op te maken hebben we een aantal gegevens nodig

recaptcha
reCAPTCHA
PrivacyTerms

Uw woningwaarde wordt berekend... 🚀

loading

Bedankt %name%! De woningwaarde van %address% is berekend 🥳

Check uw mail voor het rapport!

success
Wat is mijn huis waard?