Noordeindseweg 448, Berkel En Rodenrijs

Omschrijving

Op zoek naar een plek waar je kunt genieten van rust, ruimte en privacy, maar toch dichtbij alle voorzieningen woont? Dan is deze vrijstaande woning aan de Noordeindseweg precies wat je zoekt!

De woning staat op een royaal perceel van 543 m² eigen grond en biedt volop mogelijkheden dankzij de ruime kas, meerdere bergingen en een praktische indeling met slaap- of werkkamer op de begane grond.

De ligging is ideaal: rustig en landelijk, maar toch centraal ten opzichte van winkels, horeca en scholen. Natuur- en recreatiegebied De Groenzoom ligt op korte afstand, perfect voor een wandeling of fietstocht. Daarnaast is de woning uitstekend bereikbaar via de uitvalswegen richting Rotterdam, Den Haag en Delft (A12, A13, N209, N470 en N471).

Kortom de perfecte combinatie van vrijstaand wonen met alles in de buurt!

Indeling

Begane grond:
Entree/hal met meterkast, toilet, toegang tot de kantoorkamer en de woonkamer.

De lichte woonkamer is voorzien van een laminaatvloer, elektrische zonwering en een sfeervolle haard.
De woonkeuken is gezellig en praktisch ingericht met een gasfornuis, afzuigkap, vaatwasser, oven, combi-oven en koel-vriescombinatie. Vanuit de keuken bereik je de tuin en de bijkeuken, waar zich de aansluitingen bevinden voor de wasmachine en droger.

Kantoor/slaapkamer:
De ruime kamer op de begane grond wordt momenteel gebruikt als kantoorruimte, maar kan eenvoudig dienen als slaapkamer. Vanuit deze ruimte heb je toegang tot de technische ruimte met de cv-installatie.

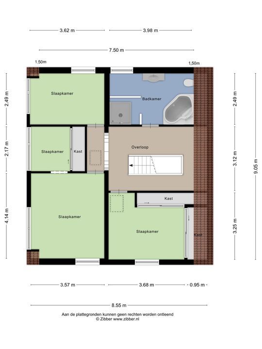
Eerste verdieping:
Ruime overloop met toegang tot alle vertrekken.
Slaapkamer 1 (ca. 3.68 x 3.25 m) gelegen aan de voorijzde, voorzien van vaste schuifkasten.
Slaapkamer 2 (ca. 4.14 x 3.57 m) eveneens aan de voorzijde, met een kunststof dakkapel en een walk-in-closet.
Slaapkamer 3 (ca. 2.49 x 3.62 m) gelegen aan de achterzijde.
Beide dakkapellen kunnen nog naar eigen wens worden afgewerkt.

De ruime badkamer beschikt over een ligbad, douche, toilet, wastafel en handdoekradiator.

Op de verdieping is via twee luiken toegang tot de vliering, ideaal voor extra bergruimte.

Tuin:
De tuin is praktisch ingericht met meerdere bergingen en een ruime kas (ca. 12 x 6 m) die geschikt is voor diverse doeleinden, zoals hobbyruimte of werkplaats.
Daarnaast is er een heerlijk terras gecreëerd met zowel zon- als schaduwplekken. Aan de zijkant van het perceel bevindt zich een ruime oprit met plaats voor meerdere auto’s.

Bijzonderheden:
- Woonoppervlakte ca. 154 m²;
- Perceeloppervlakte 543 m² eigen grond;
- Ruime kas (ca. 12 x 6 m), geschikt voor meerdere doeleinden;
- Meerdere bergingen aanwezig;
- Kunststof dakkapellen, geplaatst in september 2025;
- Slaap-/werkkamer op de begane grond;
- Recht van overpad;
- Oplevering in overleg, Conform Lijst van Zaken.

In de koopovereenkomst worden de volgende extra clausules opgenomen:
- Bij deze woning (ouder dan 30 jaar) is de ouderdomsclausule van toepassing.
- Bij deze woning (gebouwd voor 1993) is de asbestclausule van toepassing.

Wij nodigen je van harte uit om deze leuke vrijstaande woning met eigen ogen te bewonderen.

Alle verstrekte informatie moet beschouwd worden als een uitnodiging tot het doen van een bod of om in onderhandeling te treden. De teksten en impressies zijn bedoeld om een goede indruk te geven van het object. Aan de inhoud ervan is de grootst mogelijke zorg besteed. Desondanks is alle informatie nadrukkelijk onder voorbehoud. Er kunnen geen rechten worden ontleend aan deze woninginformatie.

Koopovereenkomst pas rechtsgeldig na ondertekening:
Een mondelinge overeenstemming tussen de particuliere verkoper en de particuliere koper is niet rechtsgeldig. Met andere woorden: er is geen koop. Er is pas sprake van een rechtsgeldige koop als de particuliere verkoper en de particuliere koper de koopovereenkomst hebben ondertekend. Dit vloeit voort uit artikel 7:2 Burgerlijk Wetboek. Een bevestiging van de mondelinge overeenstemming per e-mail of een toegestuurd concept van de koopovereenkomst wordt overigens niet gezien als een 'ondertekende koopovereenkomst'.

Toelichtingsclausule Meetinstructie:
De woning is conform de Branche brede Meetinstructie (BBMI) opgemeten. De Meetinstructie is bedoeld om een meer eenduidige manier van meten toe te passen voor het geven van een indicatie van de gebruiksoppervlakte. De Meetinstructie sluit verschillen in meetuitkomsten niet volledig uit, door bijvoorbeeld interpretatieverschillen, afrondingen of beperkingen bij het uitvoeren van de meting.

Wij zijn de makelaar van verkoper. Wij adviseren je jouw eigen makelaar mee te nemen voor jouw belangenbehartiging bij de aankoop van jouw toekomstige huis!

Kenmerken

Aanvaarding
Prijs
€ 698.000 k.k.
Status
Beschikbaar
Oplevering
In overleg
Adres
Noordeindseweg 448
Postcode
2651 LP
Plaats
Berkel En Rodenrijs
Bouw
Soort woonhuis
Eengezinswoning, Vrijstaande woning
Soort bouw
Bestaande bouw
Bouwjaar
1919
Onderhoud binnen
Goed
Onderhoud buiten
Goed
Oppervlakten en inhoud
Woonoppervlakte
ca. 154m²
Perceeloppervlakte
ca. 543m²
Overig oppervlakte
ca. 10m²
Inhoud
ca. 608m³
Indeling
Aantal kamers
6
Aantal slaapkamers
4
Aantal badkamers
1
Aantal verdiepingen
3
Voorzieningen
TV-Kabel, Buitenzonwering
Energie
Energielabel
C
Isolatie
Muurisolatie, Vloerisolatie, Gedeeltelijk dubbel glas, HR-glas
Warm water
C.V.-ketel
Verwarming
C.V.-ketel
Ketel
Intergas (2018, Combi-ketel, Eigendom)
Buitenruimte
Ligging
Aan drukke weg, Vrij uitzicht
Tuin
Achtertuin, Zijtuin, Tuin rondom
Achtertuin
Zuidoost, 231m², 1359×1702cm
Schuur
Vrijstaand steen

Plattegronden

Bekijk verloop van de zon

Uw browser ondersteunt geen WebGL

Locatie

[{"address": "Noordeindseweg448","zipCode": "2651 LP","city": "Berkel En Rodenrijs","lat": 52.030754,"lng": 4.4778151,"heading": 0,"pitch": 0}]

Wilt u meer informatie of een afspraak maken?

Bel 010 - 785 08 33, mail of gebruik het onderstaande formulier om contact met ons op te nemen.

Uw bericht is naar ons verzonden. Wij nemen zo snel mogelijk contact met u op.

Sorry, we kunnen helaas niet met zekerheid vaststellen of u een mens of een geautomatiseerde bot/spammer bent. Hierdoor kunnen we het formulier dat u heeft ingevuld niet verzenden. Probeer het opnieuw of neem direct contact op met de makelaar via e-mail.

Er is iets mis gegaan met het versturen van het formulier.
Controleer of u alle velden (goed) heeft ingevoerd en probeer het nog een keer.

Bij het verzenden van dit formulier geef ik toestemming mijn gegevens te verwerken op de manier zoals omschreven in het privacy statement.
recaptcha
reCAPTCHA
PrivacyTerms
van

Goedemorgen 👋

Benieuwd naar de waarde van uw huis?

U weet het al binnen 1 minuut. Laten we beginnen!

Wat is de reden van uw aanvraag?
Ik wil graag...

Er zijn meerdere antwoorden mogelijk.

Wanneer wilt u verhuizen?

We zijn er bijna 🎉

Om het rapport op te maken hebben we een aantal gegevens nodig

recaptcha
reCAPTCHA
PrivacyTerms

Uw woningwaarde wordt berekend... 🚀

loading

Bedankt %name%! De woningwaarde van %address% is berekend 🥳

Check uw mail voor het rapport!

success
Wat is mijn huis waard?