Sibeliusrode 32, Zoetermeer

Omschrijving

Leuke eengezinswoning met 3 slaapkamers en een zonnig gelegen tuin op het zuidoosten!

Lichte 4-kamer eengezinswoning met een zonnige achtertuin, 3 slaapkamers, open keuken en nette badkamer. De woning ligt centraal in de wijk Buytenwegh, op loopafstand van het wijkwinkelcentrum (met o.a. supermarkten, bakker, drogist en apotheek), openbaar vervoer, recreatiegebied De Meerpolder, het Woonhart, het Stadshart, SnowWorld en diverse uitvalswegen.

Indeling

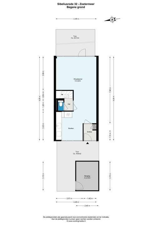
Begane grond:
Voortuin met berging en toegang tot de woning.

Entree/hal met meterkast en toegang tot de tuingerichte woonkamer aan de achterzijde. De woonkamer is voorzien van een keurige laminaatvloer en biedt toegang tot de zonnige achtertuin op het zuidoosten, compleet met berging en handige achterom.

De open keuken aan de voorzijde is uitgerust met diverse inbouwapparatuur, waaronder inductiekookplaat, combi-oven, koel-vriescombinatie en afzuigkap.

Via de woonkamer kom je in een tweede hal, waar zich het toilet en de trapopgang naar de eerste verdieping bevinden.

Eerste verdieping
Overloop met vaste kast en toegang tot alle vertrekken.

Slaapkamer 1 aan de voorzijde van de woning is voorzien van een inloopkast en een Velux dakraam.
Slaapkamers 2 en 3 bevinden zich aan de achterzijde van de woning en zijn ook beide voorzien van een Velux dakraam.

De badkamer is uitgerust met een wastafel, ligbad en een radiator, tevens bevindt zich hier de aansluiting voor de wasmachine en heeft deze ruimte ook een Velux dakraam.

Bijzonderheden:
- Zonnige achtertuin op het zuidoosten
- Een kindvriendelijke woon- en leefomgeving nabij het centrum van Zoetermeer
- Parkeergelegenheid op eigen terrein
- Oplevering in overleg, conform Lijst van Zaken

Wij nodigen je van harte uit om deze leuke woning met eigen ogen te bewonderen.

In de koopovereenkomst worden de volgende extra clausules opgenomen:
- Bij deze woning (ouder dan 30 jaar) is de ouderdomsclausule van toepassing.
- Bij deze woning (gebouwd voor 1993) is de asbestclausule van toepassing.

Alle verstrekte informatie moet beschouwd worden als een uitnodiging tot het doen van een bod of om in onderhandeling te treden. De teksten en impressies zijn bedoeld om een goede indruk te geven van het object. Aan de inhoud ervan is de grootst mogelijke zorg besteed. Desondanks is alle informatie nadrukkelijk onder voorbehoud. Er kunnen geen rechten worden ontleend aan deze woninginformatie.
Koopovereenkomst pas rechtsgeldig na ondertekening:
Een mondelinge overeenstemming tussen de particuliere verkoper en de particuliere koper is niet rechtsgeldig. Met andere woorden: er is geen koop. Er is pas sprake van een rechtsgeldige koop als de particuliere verkoper en de particuliere koper de koopovereenkomst hebben ondertekend. Dit vloeit voort uit artikel 7:2 Burgerlijk Wetboek. Een bevestiging van de mondelinge overeenstemming per e-mail of een toegestuurd concept van de koopovereenkomst wordt overigens niet gezien als een 'ondertekende koopovereenkomst'.

Toelichtingsclausule Meetinstructie:
De woning is conform de Branche brede Meetinstructie (BBMI) opgemeten. De Meetinstructie is bedoeld om een meer eenduidige manier van meten toe te passen voor het geven van een indicatie van de gebruiksoppervlakte. De Meetinstructie sluit verschillen in meetuitkomsten niet volledig uit, door bijvoorbeeld interpretatieverschillen, afrondingen of beperkingen bij het uitvoeren van de meting.

Wij zijn de makelaar van verkoper. Wij adviseren je jouw eigen makelaar mee te nemen voor jouw belangenbehartiging bij de aankoop van jouw toekomstige huis!

Kenmerken

Aanvaarding
Prijs
€ 400.000 k.k.
Status
Beschikbaar
Oplevering
In overleg
Adres
Sibeliusrode 32
Postcode
2717 DN
Plaats
Zoetermeer
Bouw
Soort woonhuis
Eengezinswoning, Tussenwoning
Soort bouw
Bestaande bouw
Bouwjaar
1978
Onderhoud binnen
Goed
Onderhoud buiten
Goed
Oppervlakten en inhoud
Woonoppervlakte
ca. 81m²
Perceeloppervlakte
ca. 113m²
Oppervlakte woonkamer
ca. 17m²
Inhoud
ca. 288m³
Indeling
Aantal kamers
4
Aantal slaapkamers
3
Aantal badkamers
1
Aantal verdiepingen
2
Voorzieningen
Dakraam, Glasvezel kabel
Energie
Energielabel
A
Warm water
C.V.-ketel
Verwarming
C.V.-ketel
Ketel
Intergas (2016, Eigendom)
Buitenruimte
Ligging
Aan rustige weg, In woonwijk
Tuin
Achtertuin, Voortuin
Achtertuin
Zuid, 40m², 470×850cm
Schuur
Vrijstaand steen

Plattegronden

Bekijk verloop van de zon

Uw browser ondersteunt geen WebGL

Locatie

[{"address": "Sibeliusrode32","zipCode": "2717 DN","city": "Zoetermeer","lat": 52.0675595,"lng": 4.4727553,"heading": 0,"pitch": 0}]

Wilt u meer informatie of een afspraak maken?

Bel 010 - 785 08 33, mail of gebruik het onderstaande formulier om contact met ons op te nemen.

Uw bericht is naar ons verzonden. Wij nemen zo snel mogelijk contact met u op.

Sorry, we kunnen helaas niet met zekerheid vaststellen of u een mens of een geautomatiseerde bot/spammer bent. Hierdoor kunnen we het formulier dat u heeft ingevuld niet verzenden. Probeer het opnieuw of neem direct contact op met de makelaar via e-mail.

Er is iets mis gegaan met het versturen van het formulier.
Controleer of u alle velden (goed) heeft ingevoerd en probeer het nog een keer.

Bij het verzenden van dit formulier geef ik toestemming mijn gegevens te verwerken op de manier zoals omschreven in het privacy statement.
recaptcha
reCAPTCHA
PrivacyTerms
van

Goedemiddag 👋

Benieuwd naar de waarde van uw huis?

U weet het al binnen 1 minuut. Laten we beginnen!

Wat is de reden van uw aanvraag?
Ik wil graag...

Er zijn meerdere antwoorden mogelijk.

Wanneer wilt u verhuizen?

We zijn er bijna 🎉

Om het rapport op te maken hebben we een aantal gegevens nodig

recaptcha
reCAPTCHA
PrivacyTerms

Uw woningwaarde wordt berekend... 🚀

loading

Bedankt %name%! De woningwaarde van %address% is berekend 🥳

Check uw mail voor het rapport!

success
Wat is mijn huis waard?