Straatweg 59 G, Rotterdam

Omschrijving

In de geliefde wijk Hillegersberg-Zuid, aan de populaire Straatweg, ligt dit goed onderhouden 2-kamer bovenappartement. De woning is volledig gasloos, beschikt over een moderne keuken en badkamer en heeft een heerlijk zonnig balkon op het westen.

Deze woning ligt op korte afstand van de Bergsche plassen, de Rottermeren, Melanchtonpark met speeltuin “De Torteltuin” en Plaswijckpark. De Kleiweg ligt letterlijk om de hoek met een diversiteit aan winkels, speciaalzaken, supermarkten en restaurants. Ook basisscholen, kinderdagverblijven en sportfaciliteiten liggen in de directe omgeving. Daarnaast is de woning gunstig gelegen ten opzichte van het openbaar vervoer (bus, tram en trein) en de uitvalswegen (A20, A13 en A16).

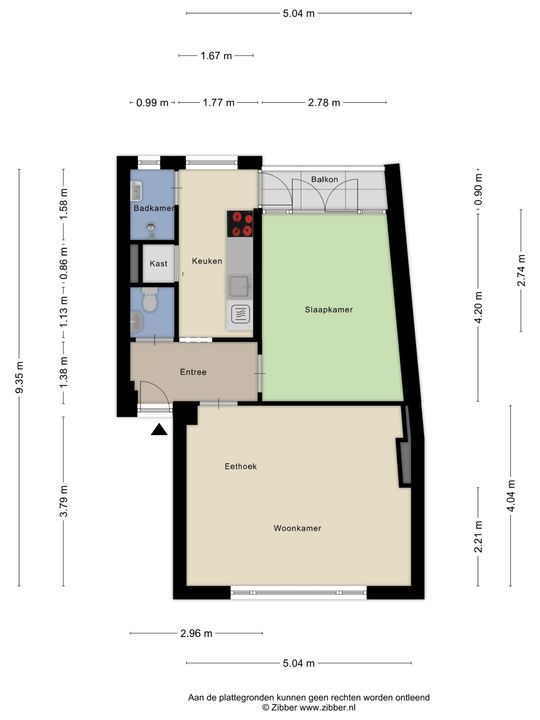
Indeling

Begane grond:
Afgesloten portiek met trapopgang naar de verdiepingen en toegang tot de berging.

2e verdieping:
Hal met meterkast, toilet en toegang tot alle vertrekken.

De sfeervolle woonkamer is gelegen aan de voorzijde en biedt uitzicht op de levendige Straatweg. Dankzij het grote raam komt er veel licht binnen, waardoor de ruimte extra ruimtelijk aanvoelt.

De moderne keuken is voorzien van diverse inbouwapparatuur, waaronder een inductiekookplaat met geïntegreerde afzuiging, combi-oven, vaatwasser en koel-vriescombinatie. Vanuit de keuken heb je toegang tot de badkamer én tot het balkon.

De badkamer beschikt over een inloopdouche en een wastafel met meubel. De slaapkamer bevindt zich aan de achterzijde en heeft openslaande deuren naar het balkon. Dit balkon is gunstig gelegen op het westen en daardoor ideaal om zowel in de middag als in de avond van de zon te genieten.

Het gehele appartement is afgewerkt met een mooie laminaatvloer.

Bijzonderheden:
- Instapklaar 2-kamer appartement;
- Gelegen nabij alle voorzieningen;
- In 2022 volledig gerenoveerd;
- Volledig gasloos;
- Zonnig balkon op het westen;
- Actieve VvE, bijdrage: € 125,- per maand;

In de koopovereenkomst worden de volgende extra clausules opgenomen:
- ouderdomsclausule (standaard bij woningen die ouder zijn dan 30 jaar);
- asbestclausule (standaard bij woningen die gebouwd zijn voor 1993).

Wij nodigen je van harte uit om deze leuke woning met eigen ogen te bewonderen.

Alle verstrekte informatie moet beschouwd worden als een uitnodiging tot het doen van een bod of om in onderhandeling te treden. De teksten en impressies zijn bedoeld om een goede indruk te geven van het object. Aan de inhoud ervan is de grootst mogelijke zorg besteed. Desondanks is alle informatie nadrukkelijk onder voorbehoud. Er kunnen geen rechten worden ontleend aan deze woninginformatie.

Koopovereenkomst pas rechtsgeldig na ondertekening:
Een mondelinge overeenstemming tussen de particuliere verkoper en de particuliere koper is niet rechtsgeldig. Met andere woorden: er is geen koop. Er is pas sprake van een rechtsgeldige koop als de particuliere verkoper en de particuliere koper de koopovereenkomst hebben ondertekend. Dit vloeit voort uit artikel 7:2 Burgerlijk Wetboek. Een bevestiging van de mondelinge overeenstemming per e-mail of een toegestuurd concept van de koopovereenkomst wordt overigens niet gezien als een 'ondertekende koopovereenkomst'.

Toelichtingsclausule Meetinstructie:
De woning is conform de Branche brede Meetinstructie (BBMI) opgemeten. De Meetinstructie is bedoeld om een meer eenduidige manier van meten toe te passen voor het geven van een indicatie van de gebruiksoppervlakte. De Meetinstructie sluit verschillen in meetuitkomsten niet volledig uit, door bijvoorbeeld interpretatieverschillen, afrondingen of beperkingen bij het uitvoeren van de meting.

Wij zijn de makelaar van verkoper. Wij adviseren je jouw eigen makelaar mee te nemen voor jouw belangenbehartiging bij de aankoop van jouw toekomstige huis!

Kenmerken

Aanvaarding
Prijs
€ 325.000 k.k.
Bijdrage VVE
€ 125
Status
Onder bod
Oplevering
In overleg
Adres
Straatweg 59 G
Postcode
3051 BD
Plaats
Rotterdam
Bouw
Soort appartement
Portiekflat, Appartement
Woonlaag
2
Soort bouw
Bestaande bouw
Bouwjaar
1955
Onderhoud binnen
Goed
Onderhoud buiten
Goed
Oppervlakten en inhoud
Woonoppervlakte
ca. 48m²
Inhoud
ca. 160m³
Indeling
Aantal kamers
2
Aantal slaapkamers
1
Aantal badkamers
1
Aantal verdiepingen
1
Voorzieningen
TV-Kabel, Glasvezel kabel
Energie
Energielabel
G
Isolatie
Grotendeels dubbelglas
Warm water
Elektrische boiler eigendom
Verwarming
Elektrische verwarming
Buitenruimte
Ligging
In centrum
Balkon
Ja
Schuur
Box

Plattegronden

Bekijk verloop van de zon

Uw browser ondersteunt geen WebGL

Locatie

[{"address": "Straatweg59","zipCode": "3051 BD","city": "Rotterdam","lat": 51.9451574,"lng": 4.4827127,"heading": 0,"pitch": 0}]

Wilt u meer informatie of een afspraak maken?

Bel 010 - 785 08 33, mail of gebruik het onderstaande formulier om contact met ons op te nemen.

Uw bericht is naar ons verzonden. Wij nemen zo snel mogelijk contact met u op.

Sorry, we kunnen helaas niet met zekerheid vaststellen of u een mens of een geautomatiseerde bot/spammer bent. Hierdoor kunnen we het formulier dat u heeft ingevuld niet verzenden. Probeer het opnieuw of neem direct contact op met de makelaar via e-mail.

Er is iets mis gegaan met het versturen van het formulier.
Controleer of u alle velden (goed) heeft ingevoerd en probeer het nog een keer.

Bij het verzenden van dit formulier geef ik toestemming mijn gegevens te verwerken op de manier zoals omschreven in het privacy statement.
recaptcha
reCAPTCHA
PrivacyTerms
van

Goedenavond 👋

Benieuwd naar de waarde van uw huis?

U weet het al binnen 1 minuut. Laten we beginnen!

Wat is de reden van uw aanvraag?
Ik wil graag...

Er zijn meerdere antwoorden mogelijk.

Wanneer wilt u verhuizen?

We zijn er bijna 🎉

Om het rapport op te maken hebben we een aantal gegevens nodig

recaptcha
reCAPTCHA
PrivacyTerms

Uw woningwaarde wordt berekend... 🚀

loading

Bedankt %name%! De woningwaarde van %address% is berekend 🥳

Check uw mail voor het rapport!

success
Wat is mijn huis waard?