Boy Edgarstraat 203, Rotterdam

Omschrijving

!!Deelname NVM Open Huizen Dag zaterdag 28 maart!!

Ruime 5-kamer tussenwoning met zonnige tuin en dakterras nabij de Zevenhuizerplas en de Rottemeren

In de geliefde wijk Zevenkamp bieden wij deze ruime 5-kamer tussenwoning aan, voorzien van een zonnige achtertuin op het zuidoosten en een heerlijk dakterras. De woning is gunstig gelegen op korte fietsafstand van recreatiegebied de Zevenhuizerplas, de Rottemeren en het Bergse Bos.

Ook winkels, openbaar vervoer (metro en bus) en diverse voorzieningen bevinden zich in de directe omgeving. Winkelcentrum Ambachtsplein, scholen en sportfaciliteiten zijn eveneens snel en eenvoudig bereikbaar. Daarnaast is de woning gunstig gelegen ten opzichte van uitvalswegen zoals de A20. Parkeren kan gratis in de straat.

Kortom: een fijne woonplek waar rust, ruimte en voorzieningen perfect samenkomen.

Indeling

Begane grond:
Entree/hal met meterkast, toilet, trapopgang naar de eerste verdieping en toegang tot de woonkamer.

De ruime en lichte woonkamer is voorzien van een plavuizen vloer met vloerverwarming en biedt toegang tot de sfeervolle achtertuin, gelegen op het zuidoosten. De tuin beschikt over een elektrisch zonnescherm.

De keuken bevindt zich aan de voorzijde van de woning en is uitgerust met diverse inbouwapparatuur, waaronder een combi-oven, keramische kookplaat, afzuigkap, vaatwasser, koel-/vriescombinatie en een spoelbak met mengkraan.
Vanuit de keuken is er toegang tot de inpandige berging.

1e verdieping:
Overloop met toegang tot alle vertrekken.
Slaapkamer 1: ca. 3.24 x 4.66 m, gelegen aan de voorzijde
Slaapkamer 2: ca. 4.31 x 3.69 m, gelegen aan de achterzijde en voorzien van een elektrisch rolluik
Slaapkamer 3: ca. 4.32 x 2.89 m, eveneens aan de achterzijde gelegen en voorzien van een elektrisch rolluik

De badkamer is voorzien van een ligbad, douche en toilet.

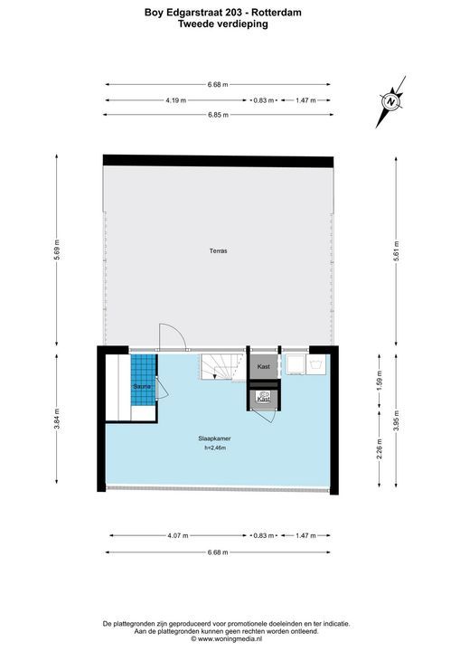
2e verdieping:
Ruime zolderverdieping met een vierde slaapkamer, voorzien van aansluitingen voor de wasmachine en droger. Tevens bevindt zich hier een sauna.

Vanuit deze verdieping is er toegang tot het zonnige dakterras.

Bijzonderheden:
- Gelegen op eigen grond
- Verwarming en warm water via stadsverwarming (vloerverwarming op de begane grond)
- Voorgevel geïmpregneerd in het najaar van 2025
- 10 zonnepanelen aanwezig
- Zonnige achtertuin op het zuidoosten en een dakterras
- Vier ruime slaapkamers
- Oplevering in overleg, conform Lijst van Zaken.

In de koopovereenkomst worden de volgende extra clausules opgenomen:
- ouderdomsclausule (standaard bij woningen die ouder zijn dan 30 jaar);

Wij nodigen je van harte uit om deze leuke eengezinswoning met eigen ogen te bewonderen.

Alle verstrekte informatie moet beschouwd worden als een uitnodiging tot het doen van een bod of om in onderhandeling te treden. De teksten en impressies zijn bedoeld om een goede indruk te geven van het object. Aan de inhoud ervan is de grootst mogelijke zorg besteed. Desondanks is alle informatie nadrukkelijk onder voorbehoud. Er kunnen geen rechten worden ontleend aan deze woninginformatie.

Koopovereenkomst pas rechtsgeldig na ondertekening:
Een mondelinge overeenstemming tussen de particuliere verkoper en de particuliere koper is niet rechtsgeldig. Met andere woorden: er is geen koop. Er is pas sprake van een rechtsgeldige koop als de particuliere verkoper en de particuliere koper de koopovereenkomst hebben ondertekend. Dit vloeit voort uit artikel 7:2 Burgerlijk Wetboek. Een bevestiging van de mondelinge overeenstemming per e-mail of een toegestuurd concept van de koopovereenkomst wordt overigens niet gezien als een 'ondertekende koopovereenkomst'.

Toelichtingsclausule Meetinstructie:
De woning is conform de Branchebrede Meetinstructie (BBMI) opgemeten. De Meetinstructie is bedoeld om een meer eenduidige manier van meten toe te passen voor het geven van een indicatie van de gebruiksoppervlakte. De Meetinstructie sluit verschillen in meetuitkomsten niet volledig uit, door bijvoorbeeld interpretatieverschillen, afrondingen of beperkingen bij het uitvoeren van de meting.

Wij zijn de makelaar van verkoper. Wij adviseren je jouw eigen makelaar mee te nemen voor jouw belangenbehartiging bij de aankoop van jouw toekomstige huis!

Kenmerken

Aanvaarding
Prijs
€ 588.000 k.k.
Status
Beschikbaar
Oplevering
In overleg
Adres
Boy Edgarstraat 203
Postcode
3069 ZA
Plaats
Rotterdam
Bouw
Soort woonhuis
Eengezinswoning, Tussenwoning
Soort bouw
Bestaande bouw
Bouwjaar
1993
Onderhoud binnen
Goed
Onderhoud buiten
Goed
Oppervlakten en inhoud
Woonoppervlakte
ca. 153m²
Perceeloppervlakte
ca. 133m²
Inhoud
ca. 491m³
Indeling
Aantal kamers
5
Aantal slaapkamers
4
Aantal badkamers
1
Aantal verdiepingen
3
Voorzieningen
Mechanische ventilatie, Rolluiken, TV-Kabel, Buitenzonwering, Zonnepanelen
Energie
Energielabel
A+
Isolatie
Dakisolatie, Muurisolatie, Dubbel glas, HR-glas
Warm water
Stadsverwarming
Verwarming
Stadsverwarming, Vloerverwarming gedeeltelijk
Ketel
(Combi-ketel)
Buitenruimte
Ligging
In woonwijk
Tuin
Achtertuin
Achtertuin
Zuidoost, 70m², 778×895cm

Plattegronden

Bekijk verloop van de zon

Uw browser ondersteunt geen WebGL

Locatie

[{"address": "Boy Edgarstraat203","zipCode": "3069 ZA","city": "Rotterdam","lat": 51.9697962,"lng": 4.5790782,"heading": 0,"pitch": 0}]

Wilt u meer informatie of een afspraak maken?

Bel 010 - 785 08 33, mail of gebruik het onderstaande formulier om contact met ons op te nemen.

Uw bericht is naar ons verzonden. Wij nemen zo snel mogelijk contact met u op.

Sorry, we kunnen helaas niet met zekerheid vaststellen of u een mens of een geautomatiseerde bot/spammer bent. Hierdoor kunnen we het formulier dat u heeft ingevuld niet verzenden. Probeer het opnieuw of neem direct contact op met de makelaar via e-mail.

Er is iets mis gegaan met het versturen van het formulier.
Controleer of u alle velden (goed) heeft ingevoerd en probeer het nog een keer.

Bij het verzenden van dit formulier geef ik toestemming mijn gegevens te verwerken op de manier zoals omschreven in het privacy statement.
recaptcha
reCAPTCHA
PrivacyTerms
van

Goedenavond 👋

Benieuwd naar de waarde van uw huis?

U weet het al binnen 1 minuut. Laten we beginnen!

Wat is de reden van uw aanvraag?
Ik wil graag...

Er zijn meerdere antwoorden mogelijk.

Wanneer wilt u verhuizen?

We zijn er bijna 🎉

Om het rapport op te maken hebben we een aantal gegevens nodig

recaptcha
reCAPTCHA
PrivacyTerms

Uw woningwaarde wordt berekend... 🚀

loading

Bedankt %name%! De woningwaarde van %address% is berekend 🥳

Check uw mail voor het rapport!

success
Wat is mijn huis waard?