Faunalaan 4, Pijnacker

Omschrijving

Heerlijke woning met alles binnen handbereik!

Welkom in deze ruime tussenwoning waar je je direct thuis voelt. De woning is modern afgewerkt en beschikt over een fraaie PVC-vloer, een stijlvolle keuken in hoekopstelling en een complete badkamer. Momenteel telt de woning 3 slaapkamers, waarbij het eenvoudig mogelijk is om weer 4 slaapkamers te realiseren, aangezien er voorheen 3 slaapkamers op de eerste verdieping aanwezig waren. Dankzij de royale uitbouw is de woonkamer extra ruim en is de woning voorzien van vloerverwarming op alle verdiepingen.

Kom snel kijken en ontdek zelf het comfort en de fijne sfeer van deze woning!

De woning ligt in een jonge, levendige wijk. Alle voorzieningen zijn dichtbij: het dorpscentrum van Pijnacker ligt op loopafstand, net als scholen, kinderopvang, bushalte en het zorgcentrum. De halte van de RandstadRail (metro) bereik je al binnen twee minuten lopen, ideaal voor wie werkt in Rotterdam, Den Haag of Zoetermeer. Ook de uitvalswegen zijn uitstekend bereikbaar.
Daarnaast vind je in de omgeving volop sportfaciliteiten, recreatiegebieden en winkelcentra in Pijnacker, Delft en Berkel en Rodenrijs. Hier woon je rustig, maar met alles wat je nodig hebt binnen handbereik.

Indeling

Begane grond:
Entree met hal, meterkast, modern toilet, trapopgang naar de eerste verdieping en toegang tot de woonkamer.

De ruime woonkamer met royale uitbouw is voorzien van een moderne PVC-vloer met vloerverwarming en een stijlvolle cinemawall met sfeervolle elektrische haard.
Aan de voorzijde bevindt zich de moderne keuken in hoekopstelling, uitgerust met diverse inbouwapparatuur waaronder een gasfornuis, afzuigkap, combi-oven, vaatwasser en koel-vriescombinatie. Er is bovendien volop kastruimte aanwezig.

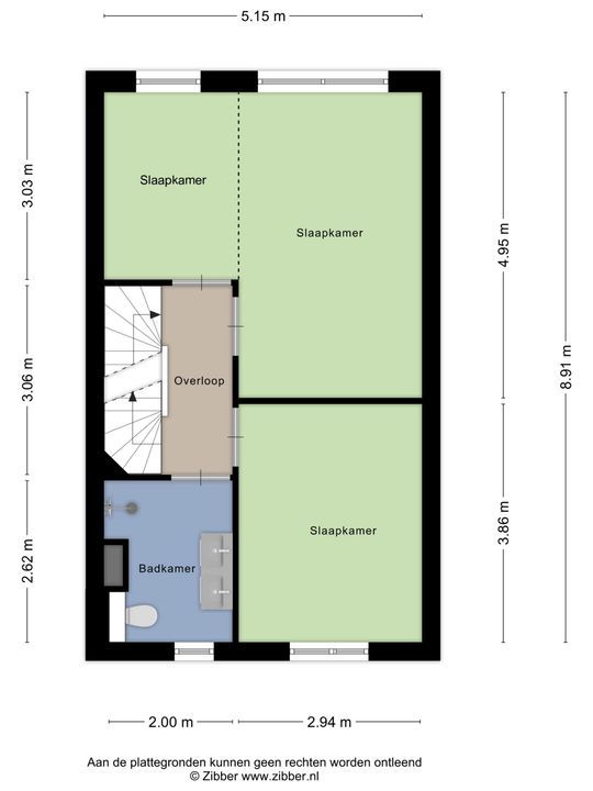
Eerste verdieping:
Overloop met toegang tot de slaapkamers en de badkamer.

Slaapkamer 1 aan de voorzijde (ca. 3.86 x 2.94 m)
Slaapkamer 2 (masterbedroom) aan de achterzijde (ca. 4.95 x 5.15 m). Deze ruimte bestond oorspronkelijk uit twee slaapkamers en kan eenvoudig weer worden teruggebracht.

De moderne badkamer is compleet uitgevoerd met inloopdouche, tweede toilet, dubbele wastafel met meubel en handdoekradiator.
Elke kamer beschikt over een eigen thermostaat, zodat de vloerverwarming individueel is in te stellen.

Tweede verdieping:
Deze ruime, open zolder biedt volop mogelijkheden om extra slaapkamers of een werkkamer te realiseren. Dankzij het Velux dakraam is er veel daglicht.
Verder is hier een aparte wasruimte met aansluiting voor wasmachine en droger, en de opstelplaats van de cv-ketel.

Tuin:
De zonnige tuin is keurig aangelegd met fraaie bestrating en beschikt over een berging. Achter de tuin ligt een mandelig terrein met een eigen parkeerplaats die bij de woning hoort.

Bijzonderheden:
- Prachtige woning met royale uitbouw
- Bouwjaar 2016, woonoppervlakte ca. 130 m²
- Dorp, scholen, kinderopvang, bushalte en zorgcentrum allemaal dichtbij
- Gehele woning voorzien van vloerverwarming (per kamer regelbaar)
- Eigen parkeerplaats op mandelig terrein
- Er is een kwalitatieve verplichting gevestigd voor behoud van het gevelbeeld.
- Oplevering in overleg, conform Lijst van Zaken.

Alle verstrekte informatie moet beschouwd worden als een uitnodiging tot het doen van een bod of om in onderhandeling te treden. De teksten en impressies zijn bedoeld om een goede indruk te geven van het object. Aan de inhoud ervan is de grootst mogelijke zorg besteed. Desondanks is alle informatie nadrukkelijk onder voorbehoud. Er kunnen geen rechten worden ontleend aan deze woninginformatie.

Koopovereenkomst pas rechtsgeldig na ondertekening:
Een mondelinge overeenstemming tussen de particuliere verkoper en de particuliere koper is niet rechtsgeldig. Met andere woorden: er is geen koop. Er is pas sprake van een rechtsgeldige koop als de particuliere verkoper en de particuliere koper de koopovereenkomst hebben ondertekend. Dit vloeit voort uit artikel 7:2 Burgerlijk Wetboek. Een bevestiging van de mondelinge overeenstemming per e-mail of een toegestuurd concept van de koopovereenkomst wordt overigens niet gezien als een 'ondertekende koopovereenkomst'.

Toelichtingsclausule Meetinstructie:
De woning is conform de Branchebrede Meetinstructie (BBMI) opgemeten. De Meetinstructie is bedoeld om een meer eenduidige manier van meten toe te passen voor het geven van een indicatie van de gebruiksoppervlakte. De Meetinstructie sluit verschillen in meetuitkomsten niet volledig uit, door bijvoorbeeld interpretatieverschillen, afrondingen of beperkingen bij het uitvoeren van de meting.
Wij zijn de makelaar van verkoper. Wij adviseren je jouw eigen makelaar mee te nemen voor jouw belangenbehartiging bij de aankoop van jouw toekomstige huis!

Kenmerken

Aanvaarding
Prijs
€ 650.000 k.k.
Servicekosten
€ 21
Status
Verkocht onder voorbehoud
Oplevering
In overleg
Adres
Faunalaan 4
Postcode
2643 KT
Plaats
Pijnacker
Bouw
Soort woonhuis
Eengezinswoning, Tussenwoning
Soort bouw
Bestaande bouw
Bouwjaar
2016
Onderhoud binnen
Goed
Onderhoud buiten
Goed
Oppervlakten en inhoud
Woonoppervlakte
ca. 131m²
Perceeloppervlakte
ca. 112m²
Inhoud
ca. 460m³
Indeling
Aantal kamers
4
Aantal slaapkamers
3
Aantal badkamers
1
Aantal verdiepingen
3
Voorzieningen
Mechanische ventilatie, TV-Kabel, Dakraam, Glasvezel kabel
Energie
Energielabel
A
Isolatie
Dubbel glas, Volledig geisoleerd
Warm water
C.V.-ketel
Verwarming
C.V.-ketel
Ketel
(2016, Combi-ketel, Eigendom)
Buitenruimte
Ligging
In centrum, In woonwijk
Tuin
Achtertuin, Voortuin
Achtertuin
Zuid, 39m², 520×750cm
Schuur
Vrijstaand hout

Plattegronden

Bekijk verloop van de zon

Uw browser ondersteunt geen WebGL

Locatie

[{"address": "Faunalaan4","zipCode": "2643 KT","city": "Pijnacker","lat": 52.0030155,"lng": 4.4446058,"heading": 0,"pitch": 0}]

Wilt u meer informatie of een afspraak maken?

Bel 010 - 785 08 33, mail of gebruik het onderstaande formulier om contact met ons op te nemen.

Uw bericht is naar ons verzonden. Wij nemen zo snel mogelijk contact met u op.

Sorry, we kunnen helaas niet met zekerheid vaststellen of u een mens of een geautomatiseerde bot/spammer bent. Hierdoor kunnen we het formulier dat u heeft ingevuld niet verzenden. Probeer het opnieuw of neem direct contact op met de makelaar via e-mail.

Er is iets mis gegaan met het versturen van het formulier.
Controleer of u alle velden (goed) heeft ingevoerd en probeer het nog een keer.

Bij het verzenden van dit formulier geef ik toestemming mijn gegevens te verwerken op de manier zoals omschreven in het privacy statement.
recaptcha
reCAPTCHA
PrivacyTerms
van

Goedenavond 👋

Benieuwd naar de waarde van uw huis?

U weet het al binnen 1 minuut. Laten we beginnen!

Wat is de reden van uw aanvraag?
Ik wil graag...

Er zijn meerdere antwoorden mogelijk.

Wanneer wilt u verhuizen?

We zijn er bijna 🎉

Om het rapport op te maken hebben we een aantal gegevens nodig

recaptcha
reCAPTCHA
PrivacyTerms

Uw woningwaarde wordt berekend... 🚀

loading

Bedankt %name%! De woningwaarde van %address% is berekend 🥳

Check uw mail voor het rapport!

success
Wat is mijn huis waard?