Kastanjelaan 28, Bleiswijk

Omschrijving

Zoek je ruimte, een zonnige achtertuin en vier slaapkamers? En woon je graag dicht bij de natuur in een kindvriendelijke wijk?

Dan is deze woning aan de Kastanjelaan 28 in Bleiswijk misschien wel precies wat je zoekt!

De ligging is ideaal: op loopafstand van natuur- en recreatiegebied De Rottemeren en de Bleiswijkse Zoom, maar ook dicht bij alle voorzieningen zoals diverse (basis)scholen, sportfaciliteiten (tennis, padel, voetbal, hockey en korfbal), winkels en goede uitvalswegen richting Zoetermeer, Den Haag en Rotterdam. Ook het openbaar vervoer is binnen handbereik.

Kortom; een fijn huis in een heerlijke leefomgeving met alles faciliteiten die Bleiswijk te bieden heeft.

Indeling

Begane grond:
Entree, hal met meterkast, toilet, trapopgang naar de eerste verdieping en toegang tot de keuken en woonkamer.

De verrassend ruime, tuingerichte woonkamer is voorzien van een mooie laminaatvloer en heeft toegang tot de zonnige achtertuin. Daarnaast is er een praktische trapkast aanwezig.
De verzorgde achtertuin ligt op het westen, beschikt over een achterom en een vrijstaande berging.

De keuken in L-opstelling bevindt zich aan de voorzijde van de woning en is uitgerust met een keramische kookplaat, oven, afzuigkap, koel-vriescombinatie, vaatwasser en een spoelbak met mengkraan.

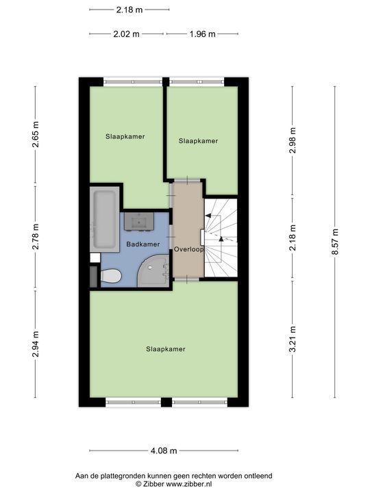
1e verdieping:
Overloop met toegang tot alle slaapkamers en de badkamer.
Slaapkamer I: ruime ouderslaapkamer aan de voorzijde (ca. 3.21 x 4.08 m)
Slaapkamer II: gelegen aan de achterzijde (ca. 2.65 x 2.02 m)
Slaapkamer III: eveneens aan de achterzijde, momenteel in gebruik als walk-in closet.

De badkamer is voorzien van een ligbad, douche, wastafel, toilet, handdoekradiator en mechanische ventilatie.

2e verdieping:
Op de ruime zolder vind je de vierde slaapkamer met een kunststof dakkapel. Daarnaast is de zolder voorzien van praktische vaste kasten en de aansluitingen voor de wasmachine, droger en cv-ketel. Bovendien is er een vliering aanwezig voor extra opbergruimte.

Bijzonderheden:
- Bouwjaar 1979, woonoppervlakte ca. 102m2
- Gelegen op loopafstand van de natuur en De Rottemeren
- Vier ruime slaapkamers
- Cv ketel uit 2021
- In 2023 nieuwe kozijnen met HR++ glas op de 1e verdieping
- Recent schilderwerk aan de buitenzijde
- Oplevering in overleg, conform Lijst van Zaken.

In de koopovereenkomst worden de volgende extra clausules opgenomen:
- ouderdomsclausule (standaard bij woningen die ouder zijn dan 30 jaar);
- asbestclausule (standaard bij woningen die gebouwd zijn voor 1993).

Wij nodigen jullie van harte uit om deze woning met eigen ogen te bewonderen.

Alle verstrekte informatie moet beschouwd worden als een uitnodiging tot het doen van een bod of om in onderhandeling te treden. De teksten en impressies zijn bedoeld om een goede indruk te geven van het object. Aan de inhoud ervan is de grootst mogelijke zorg besteed. Desondanks is alle informatie nadrukkelijk onder voorbehoud. Er kunnen geen rechten worden ontleend aan deze woninginformatie.

Koopovereenkomst pas rechtsgeldig na ondertekening:
Een mondelinge overeenstemming tussen de particuliere verkoper en de particuliere koper is niet rechtsgeldig. Met andere woorden: er is geen koop. Er is pas sprake van een rechtsgeldige koop als de particuliere verkoper en de particuliere koper de koopovereenkomst hebben ondertekend. Dit vloeit voort uit artikel 7:2 Burgerlijk Wetboek. Een bevestiging van de mondelinge overeenstemming per e-mail of een toegestuurd concept van de koopovereenkomst wordt overigens niet gezien als een 'ondertekende koopovereenkomst'.

Toelichtingsclausule Meetinstructie:
De woning is conform de Branchebrede Meetinstructie (BBMI) opgemeten. De Meetinstructie is bedoeld om een meer eenduidige manier van meten toe te passen voor het geven van een indicatie van de gebruiksoppervlakte. De Meetinstructie sluit verschillen in meetuitkomsten niet volledig uit, door bijvoorbeeld interpretatieverschillen, afrondingen of beperkingen bij het uitvoeren van de meting.
Wij zijn de makelaar van verkoper. Wij adviseren je jouw eigen makelaar mee te nemen voor jouw belangenbehartiging bij de aankoop van jouw toekomstige huis!

Kenmerken

Aanvaarding
Prijs
€ 450.000 k.k.
Status
Verkocht onder voorbehoud
Oplevering
In overleg
Adres
Kastanjelaan 28
Postcode
2665 GC
Plaats
Bleiswijk
Bouw
Soort woonhuis
Eengezinswoning, Tussenwoning
Soort bouw
Bestaande bouw
Bouwjaar
1977
Onderhoud binnen
Goed
Onderhoud buiten
Goed
Oppervlakten en inhoud
Woonoppervlakte
ca. 102m²
Perceeloppervlakte
ca. 100m²
Inhoud
ca. 363m³
Indeling
Aantal kamers
5
Aantal slaapkamers
4
Aantal badkamers
1
Aantal verdiepingen
3
Voorzieningen
Mechanische ventilatie, TV-Kabel, Glasvezel kabel
Energie
Energielabel
C
Isolatie
Dubbel glas, HR-glas
Warm water
C.V.-ketel
Verwarming
C.V.-ketel
Ketel
Intergas (2021, Combi-ketel, Eigendom)
Buitenruimte
Ligging
In woonwijk, Vrij uitzicht
Tuin
Achtertuin, Voortuin
Achtertuin
West, 35m², 417×838cm
Schuur
Vrijstaand steen
Faciliteiten schuur
Voorzien van elektra

Plattegronden

Bekijk verloop van de zon

Uw browser ondersteunt geen WebGL

Locatie

[{"address": "Kastanjelaan28","zipCode": "2665 GC","city": "Bleiswijk","lat": 52.0043819,"lng": 4.5434038,"heading": 0,"pitch": 0}]

Wilt u meer informatie of een afspraak maken?

Bel 010 - 785 08 33, mail of gebruik het onderstaande formulier om contact met ons op te nemen.

Uw bericht is naar ons verzonden. Wij nemen zo snel mogelijk contact met u op.

Sorry, we kunnen helaas niet met zekerheid vaststellen of u een mens of een geautomatiseerde bot/spammer bent. Hierdoor kunnen we het formulier dat u heeft ingevuld niet verzenden. Probeer het opnieuw of neem direct contact op met de makelaar via e-mail.

Er is iets mis gegaan met het versturen van het formulier.
Controleer of u alle velden (goed) heeft ingevoerd en probeer het nog een keer.

Bij het verzenden van dit formulier geef ik toestemming mijn gegevens te verwerken op de manier zoals omschreven in het privacy statement.
recaptcha
reCAPTCHA
PrivacyTerms
van

Goedenavond 👋

Benieuwd naar de waarde van uw huis?

U weet het al binnen 1 minuut. Laten we beginnen!

Wat is de reden van uw aanvraag?
Ik wil graag...

Er zijn meerdere antwoorden mogelijk.

Wanneer wilt u verhuizen?

We zijn er bijna 🎉

Om het rapport op te maken hebben we een aantal gegevens nodig

recaptcha
reCAPTCHA
PrivacyTerms

Uw woningwaarde wordt berekend... 🚀

loading

Bedankt %name%! De woningwaarde van %address% is berekend 🥳

Check uw mail voor het rapport!

success
Wat is mijn huis waard?