Gruttostraat 39, Bleiswijk

Omschrijving

Verrassend ruime hoekwoning met 4 slaapkamers in de kindvriendelijke Vogelbuurt

Gelegen in een groene omgeving met een speeltuin aan de overzijde van de straat. De woning beschikt over een zonnige achtertuin op het zuiden met veel privacy, een vrijstaande berging en een achterom.

De locatie is eveneens uitstekend. Diverse basisscholen, middelbare scholen, kinderopvang, winkels, recreatiegebied De Rottemeren en sportfaciliteiten zijn op loop- of fietsafstand bereikbaar. Daarnaast heeft Bleiswijk een centrale ligging ten opzichte van de grote steden; binnen enkele autominuten bereik je de N209 richting Rotterdam, treinstation Lansingerland en de A12 richting Den Haag en Utrecht.

Kortom: een fijn huis in een heerlijke leefomgeving voor een jong gezin, met alle faciliteiten die Bleiswijk te bieden heeft binnen handbereik.

Omschrijving

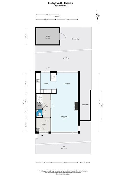
Begane grond:
Entree via de voortuin. Afgesloten tochtportaal met meterkast en een vaste garderobekast. Vanuit hier toegang tot de hal, waar zich het toilet, een praktische voorraadkast, de toegang tot de woonkamer en de trapopgang naar de eerste verdieping bevinden.

De ruime en lichte woonkamer beschikt over een tuindeur naar de zonnige achtertuin en heeft aan de voorzijde een vrij uitzicht. De begane grond is voorzien van een natuurstenen vloer met vloerverwarming.

De keuken is gelegen aan de achterzijde en is uitgerust met diverse inbouwapparatuur, waaronder twee combi-ovens, gasfornuis, afzuigkap, koelkast, vriezer en vaatwasser.

Tuin:
De fraai aangelegde achtertuin is gelegen op het zonnige zuiden en biedt veel privacy. Achterin de tuin bevindt zich een sfeervolle overkapping, een fijne plek om ook op minder zonnige dagen buiten te zitten. Daarnaast beschikt de tuin over een vrijstaande berging, ideaal voor het stallen van fietsen en het opbergen van tuinspullen. Via de achterom is de tuin tevens gemakkelijk bereikbaar.

Eerste verdieping:
Overloop met toegang tot alle vertrekken.
Slaapkamer 1, ca. 3.05 x 2.94 m, gelegen aan de achterzijde
Slaapkamer 2, ca. 3.05 x 3.20 m, eveneens gelegen aan de achterzijde
Slaapkamer 3, ca. 3.39 x 6.24 m, gelegen aan de voorzijde en voorzien van een inloopkast

De badkamer is uitgerust met een wastafel, douche, spiegel met verlichting, toilet en vloerverwarming.

Tweede verdieping:
Ruime zolderverdieping met kunststof dakkapel voorzien van elektrische rolluiken en praktische knieschotten, ideaal voor extra opbergruimte. Hier bevinden zich tevens de opstelplaats van de cv-ketel en de aansluitingen voor de wasmachine en droger.

Bijzonderheden:
- Gelegen op gunstige locatie ten opzichte van scholen, winkels en het recreatiegebied;
- Woning is goed onderhouden met heerlijke ruime slaapkamers;
- Fraai aangelegde achtertuin met overkapping;
- Oplevering in overleg en conform Lijst van Zaken.

In de koopovereenkomst worden de volgende extra clausules opgenomen:
- Bij deze woning (ouder dan 30 jaar) is de ouderdomsclausule van toepassing.
- Bij deze woning (gebouwd voor 1993) is de asbestclausule van toepassing.

Wij nodigen je van harte uit om dit leuke huis met eigen ogen te bewonderen.

Alle verstrekte informatie moet beschouwd worden als een uitnodiging tot het doen van een bod of om in onderhandeling te treden. De teksten en impressies zijn bedoeld om een goede indruk te geven van het object. Aan de inhoud ervan is de grootst mogelijke zorg besteed. Desondanks is alle informatie nadrukkelijk onder voorbehoud. Er kunnen geen rechten worden ontleend aan deze woninginformatie.

Koopovereenkomst pas rechtsgeldig na ondertekening:
Een mondelinge overeenstemming tussen de particuliere verkoper en de particuliere koper is niet rechtsgeldig. Met andere woorden: er is geen koop. Er is pas sprake van een rechtsgeldige koop als de particuliere verkoper en de particuliere koper de koopovereenkomst hebben ondertekend. Dit vloeit voort uit artikel 7:2 Burgerlijk Wetboek. Een bevestiging van de mondelinge overeenstemming per e-mail of een toegestuurd concept van de koopovereenkomst wordt overigens niet gezien als een 'ondertekende koopovereenkomst'.

Toelichtingsclausule Meetinstructie:
De woning is conform de Branchebrede Meetinstructie (BBMI) opgemeten. De Meetinstructie is bedoeld om een meer eenduidige manier van meten toe te passen voor het geven van een indicatie van de gebruiksoppervlakte. De Meetinstructie sluit verschillen in meetuitkomsten niet volledig uit, door bijvoorbeeld interpretatieverschillen, afrondingen of beperkingen bij het uitvoeren van de meting.
Wij zijn de makelaar van verkoper. Wij adviseren je jouw eigen makelaar mee te nemen voor jouw belangenbehartiging bij de aankoop van jouw toekomstige huis!

Kenmerken

Aanvaarding
Prijs
€ 545.000 k.k.
Status
Beschikbaar
Oplevering
In overleg
Adres
Gruttostraat 39
Postcode
2665 EK
Plaats
Bleiswijk
Bouw
Soort woonhuis
Eengezinswoning, Hoekwoning
Soort bouw
Bestaande bouw
Bouwjaar
1972
Onderhoud binnen
Goed
Onderhoud buiten
Goed
Oppervlakten en inhoud
Woonoppervlakte
ca. 139m²
Perceeloppervlakte
ca. 207m²
Inhoud
ca. 504m³
Indeling
Aantal kamers
5
Aantal slaapkamers
4
Aantal badkamers
1
Aantal verdiepingen
3
Voorzieningen
Glasvezel kabel
Energie
Energielabel
C
Isolatie
Dakisolatie, Vloerisolatie, Dubbel glas, HR-glas
Warm water
C.V.-ketel
Verwarming
C.V.-ketel
Ketel
Ferroli (2014, Combi-ketel, Eigendom)
Buitenruimte
Ligging
Aan rustige weg, In woonwijk, Vrij uitzicht
Tuin
Achtertuin, Voortuin
Achtertuin
Zuid, 88m², 890×984cm
Schuur
Vrijstaand hout

Plattegronden

Bekijk verloop van de zon

Uw browser ondersteunt geen WebGL

Locatie

[{"address": "Gruttostraat39","zipCode": "2665 EK","city": "Bleiswijk","lat": 52.0083461,"lng": 4.538229,"heading": 0,"pitch": 0}]

Wilt u meer informatie of een afspraak maken?

Bel 010 - 785 08 33, mail of gebruik het onderstaande formulier om contact met ons op te nemen.

Uw bericht is naar ons verzonden. Wij nemen zo snel mogelijk contact met u op.

Sorry, we kunnen helaas niet met zekerheid vaststellen of u een mens of een geautomatiseerde bot/spammer bent. Hierdoor kunnen we het formulier dat u heeft ingevuld niet verzenden. Probeer het opnieuw of neem direct contact op met de makelaar via e-mail.

Er is iets mis gegaan met het versturen van het formulier.
Controleer of u alle velden (goed) heeft ingevoerd en probeer het nog een keer.

Bij het verzenden van dit formulier geef ik toestemming mijn gegevens te verwerken op de manier zoals omschreven in het privacy statement.
recaptcha
reCAPTCHA
PrivacyTerms
van

Goedemiddag 👋

Benieuwd naar de waarde van uw huis?

U weet het al binnen 1 minuut. Laten we beginnen!

Wat is de reden van uw aanvraag?
Ik wil graag...

Er zijn meerdere antwoorden mogelijk.

Wanneer wilt u verhuizen?

We zijn er bijna 🎉

Om het rapport op te maken hebben we een aantal gegevens nodig

recaptcha
reCAPTCHA
PrivacyTerms

Uw woningwaarde wordt berekend... 🚀

loading

Bedankt %name%! De woningwaarde van %address% is berekend 🥳

Check uw mail voor het rapport!

success
Wat is mijn huis waard?