Veenmos 7, Bergschenhoek

Omschrijving

Op toplocatie in Bergschenhoek, met vrij uitzicht aan de voorzijde, gelegen 2-onder-een-kapwoning!

Ben je op zoek naar een ruime zonnige twee-onder-een-kapwoning met garage? Dan ben je hier van harte welkom om een kijkje te komen nemen. Deze woning ligt op een fijne locatie met vrij uitzicht over een singel en op korte afstand van het winkelcentrum van Bergschenhoek. (Basis)scholen, sport- en recreatiemogelijkheden en zwembad De Windas bevinden zich op fietsafstand.

De woning beschikt over een ruime woonkamer en keuken, een brede achtertuin en parkeergelegenheid op eigen terrein.

Kortom: zoek je ruimte, comfort en een fijne woonomgeving met alle voorzieningen binnen handbereik? Dan zou dit zomaar jouw nieuwe thuis kunnen zijn.

De pluspunten:
+ Vrij uitzicht over singel
+ Ruime garage voorzien van elektra en wateraansluiting
+ Eigen oprit
+ Zonnige tuin met veel privacy en onderheid terras
+ 8 zonnepanelen uit 2023
+ Veel bergruimte
+ Buitenschilderwerk heeft plaatsgevonden in 2024
+ 4 slaapkamers
+ Kindvriendelijke wijk
+ Alle voorzieningen zoals winkels en scholen dicht in de buurt
+ Goede bereikbaarheid via OV (metro) en uitvalswegen naar Den Haag, Zoetermeer, Delft en Rotterdam

Indeling

Begane grond:
Voortuin met toegang tot de woning en de garage. Hal met meterkast, trapopgang naar de eerste verdieping en toilet.

De lichte royale woonkamer heeft aan de voorzijde een fraai uitzicht op het water en is voorzien van een lichte marmeren tegelvloer. Aan de achterzijde is het fijn koffie drinken in het zonnetje met zicht op de tuin.
De keuken bevindt zich aan de achterzijde van de woning en is uitgerust met een vaatwasser, koelkast, vriezer, combi-oven, inductiekookplaat en afzuigkap. Vanuit de keuken heb je toegang tot de ruime, zonnige en fraai aangelegde achtertuin.

Tuin:
De zonnige achtertuin ligt op het zuidwesten en beschikt over diverse terrassen en plantenborders. Een heerlijke plek waar je heel de dag van de zon geniet. Het terras direct bij de woning is onderheid. De met zorg aangelegde tuin is bereikbaar via de schuifpui in de woonkamer en via de deur in de keuken. Aan de achterzijde van de woning bevindt zich tevens een elektrisch bedienbaar zonnescherm.
Langs de garage loopt een pad, waardoor je de achtertuin ook via de zijkant kunt bereiken.

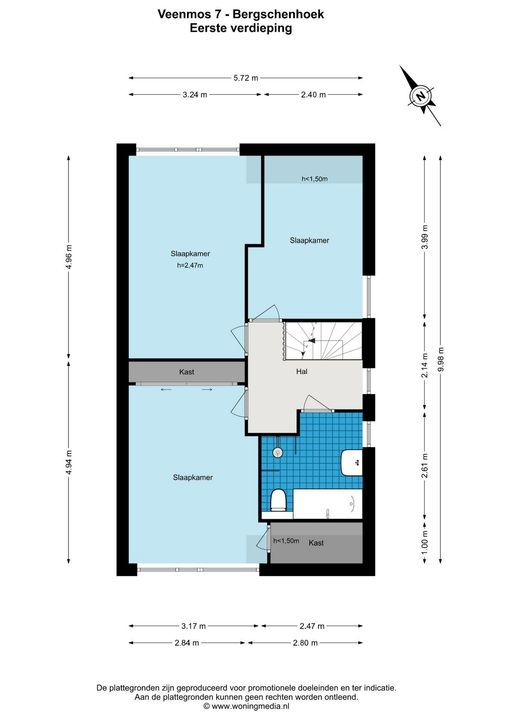
1e verdieping:
Overloop met toegang tot alle vertrekken.
3 ruime slaapkamers voorzien van vloerbedekking waarvan 1 lichte ruime masterbedroom met een groot berghok ruimte aan de achterzijde en 2 ruime slaapkamers aan de voorzijde.

De badkamer is uitgerust met een ligbad, douche, toilet, wastafel en handdoekradiator.

2e verdieping:
Ruime overloop met veel bergruimte onder het schuine dak.. Hier bevindt zich een wastafel en een praktische was- en strijkruimte en is voorzien van marmoleum. .Daarnaast vindt u hier de 4de slaapkamer voorzien van vloerbedekking en een Velux-dakraam met eveneens genoeg bergruimte.

Garage:
Een zeer ruime extra verhoogde garage met lichtkoepel en een loopdeur in de garagedeur. Hier bevindt zich ook de cv ketel.

Bijzonderheden:
- Oplevering in overleg, conform Lijst van Zaken.

In de koopovereenkomst worden de volgende extra clausules opgenomen:
- ouderdomsclausule (standaard bij woningen die ouder zijn dan 30 jaar);

Wij nodigen je van harte uit om deze riante 2-onder-1-kap woning met eigen ogen te bewonderen.

Alle verstrekte informatie moet beschouwd worden als een uitnodiging tot het doen van een bod of om in onderhandeling te treden. De teksten en impressies zijn bedoeld om een goede indruk te geven van het object. Aan de inhoud ervan is de grootst mogelijke zorg besteed. Desondanks is alle informatie nadrukkelijk onder voorbehoud. Er kunnen geen rechten worden ontleend aan deze woninginformatie.

Koopovereenkomst pas rechtsgeldig na ondertekening:
Een mondelinge overeenstemming tussen de particuliere verkoper en de particuliere koper is niet rechtsgeldig. Met andere woorden: er is geen koop. Er is pas sprake van een rechtsgeldige koop als de particuliere verkoper en de particuliere koper de koopovereenkomst hebben ondertekend. Dit vloeit voort uit artikel 7:2 Burgerlijk Wetboek. Een bevestiging van de mondelinge overeenstemming per e-mail of een toegestuurd concept van de koopovereenkomst wordt overigens niet gezien als een 'ondertekende koopovereenkomst'.

Toelichtingsclausule Meetinstructie:
De woning is conform de Branchebrede Meetinstructie (BBMI) opgemeten. De Meetinstructie is bedoeld om een meer eenduidige manier van meten toe te passen voor het geven van een indicatie van de gebruiksoppervlakte. De Meetinstructie sluit verschillen in meetuitkomsten niet volledig uit, door bijvoorbeeld interpretatieverschillen, afrondingen of beperkingen bij het uitvoeren van de meting.
Wij zijn de makelaar van verkoper. Wij adviseren je jouw eigen makelaar mee te nemen voor jouw belangenbehartiging bij de aankoop van jouw toekomstige huis!

Kenmerken

Aanvaarding
Prijs
€ 650.000 k.k.
Status
Beschikbaar
Oplevering
In overleg
Adres
Veenmos 7
Postcode
2661 MC
Plaats
Bergschenhoek
Bouw
Soort woonhuis
Eengezinswoning, 2-onder-1-kapwoning
Soort bouw
Bestaande bouw
Bouwjaar
1991
Onderhoud binnen
Goed
Onderhoud buiten
Goed
Oppervlakten en inhoud
Woonoppervlakte
ca. 134m²
Perceeloppervlakte
ca. 246m²
Overig oppervlakte
ca. 23m²
Inhoud
ca. 627m³
Indeling
Aantal kamers
5
Aantal slaapkamers
4
Aantal badkamers
1
Aantal verdiepingen
3
Voorzieningen
Mechanische ventilatie, Buitenzonwering, Schuifpui, Glasvezel kabel, Zonnepanelen
Energie
Energielabel
A
Isolatie
Dakisolatie, Muurisolatie, Vloerisolatie, Dubbel glas
Warm water
C.V.-ketel
Verwarming
C.V.-ketel
Ketel
Vaillant (2016, Combi-ketel, Eigendom)
Buitenruimte
Ligging
Aan rustige weg, In woonwijk
Tuin
Achtertuin, Voortuin
Achtertuin
Zuidwest, 86m², 928×932cm
Garage
Soort garage
Aangebouwd steen, Parkeerplaats
Capaciteit
1

Plattegronden

Bekijk verloop van de zon

Uw browser ondersteunt geen WebGL

Locatie

[{"address": "Veenmos7","zipCode": "2661 MC","city": "Bergschenhoek","lat": 51.9921389,"lng": 4.4987764,"heading": 0,"pitch": 0}]

Wilt u meer informatie of een afspraak maken?

Bel 010 - 785 08 33, mail of gebruik het onderstaande formulier om contact met ons op te nemen.

Uw bericht is naar ons verzonden. Wij nemen zo snel mogelijk contact met u op.

Sorry, we kunnen helaas niet met zekerheid vaststellen of u een mens of een geautomatiseerde bot/spammer bent. Hierdoor kunnen we het formulier dat u heeft ingevuld niet verzenden. Probeer het opnieuw of neem direct contact op met de makelaar via e-mail.

Er is iets mis gegaan met het versturen van het formulier.
Controleer of u alle velden (goed) heeft ingevoerd en probeer het nog een keer.

Bij het verzenden van dit formulier geef ik toestemming mijn gegevens te verwerken op de manier zoals omschreven in het privacy statement.
recaptcha
reCAPTCHA
PrivacyTerms
van

Goedenavond 👋

Benieuwd naar de waarde van uw huis?

U weet het al binnen 1 minuut. Laten we beginnen!

Wat is de reden van uw aanvraag?
Ik wil graag...

Er zijn meerdere antwoorden mogelijk.

Wanneer wilt u verhuizen?

We zijn er bijna 🎉

Om het rapport op te maken hebben we een aantal gegevens nodig

recaptcha
reCAPTCHA
PrivacyTerms

Uw woningwaarde wordt berekend... 🚀

loading

Bedankt %name%! De woningwaarde van %address% is berekend 🥳

Check uw mail voor het rapport!

success
Wat is mijn huis waard?