Tjeerd Kuipersstraat 47, Bergschenhoek

Omschrijving

Ruime, moderne en perfect onderhouden twee-onder-een-kapwoning in jaren ’30 stijl met droomtuin aan het water

In de geliefde en kindvriendelijke wijk Parkzoom staat deze uitstekend onderhouden twee-onder-een-kapwoning met eigen oprit, garage, vier slaapkamers en twee badkamers. Wat deze woning écht bijzonder maakt? De fantastische achtertuin met overkapping en vrij uitzicht over het water.

De woning is centraal gelegen ten opzichte van de centra van Berkel en Rodenrijs en Bergschenhoek. Ook Rotterdam-Noord ligt op korte afstand. In de directe omgeving bevinden zich onder andere het Annie M.G. Schmidtpark, diverse basisscholen en middelbare scholen, speeltuin De Kievit en natuurspeelplaats De Tuin van Floddertje. Daarnaast zijn uitvalswegen (A12, A13, A16, N209, N470, N471) en de RandstadRail snel en eenvoudig bereikbaar.

Indeling

Begane grond:
Ruime oprit met parkeergelegenheid voor meerdere auto’s en toegang tot de garage en woning.

Entree/hal met meterkast, toiletruimte, trapopgang naar de eerste verdieping en toegang tot de woonkamer.
De sfeervolle en opvallend lichte woonkamer bevindt zich aan de achterzijde van de woning en is voorzien van een moderne elektrische haard. Aan de voorzijde ligt de royale leefkeuken met karakteristieke erker.

De keuken is compleet en hoogwaardig uitgevoerd met onder andere een inductiekookplaat met Bora-afzuiging, combi-oven, separate oven, warmhoudlade, twee koel-/vriescombinaties, vaatwasser, wijnklimaatkast en een Quooker.

Tuin:
Via openslaande deuren stap je de fraai aangelegde achtertuin in, gelegen op het zuidoosten. Hier geniet je van rust, privacy én een prachtig vrij uitzicht over het water.

De tuin is met zorg ingericht en praktisch ingedeeld met meerdere terrassen, waardoor je de hele dag kunt kiezen voor zon of schaduw. Achter in de tuin bevindt zich de sfeervolle, vrijstaande overkapping, perfect gepositioneerd om optimaal te genieten van het uitzicht over het water, een heerlijke plek voor lange zomeravonden of juist beschut zitten op een frisse dag.

Direct aan het water ligt een vlonder met zitje, waar je letterlijk aan het water kunt ontspannen en volop geniet van het vrije uitzicht. Daarnaast beschikt de tuin over een gezellige buitenkeuken met lichtkoepel, een elektrisch zonnescherm, een beregeningsinstallatie en directe toegang tot de garage.

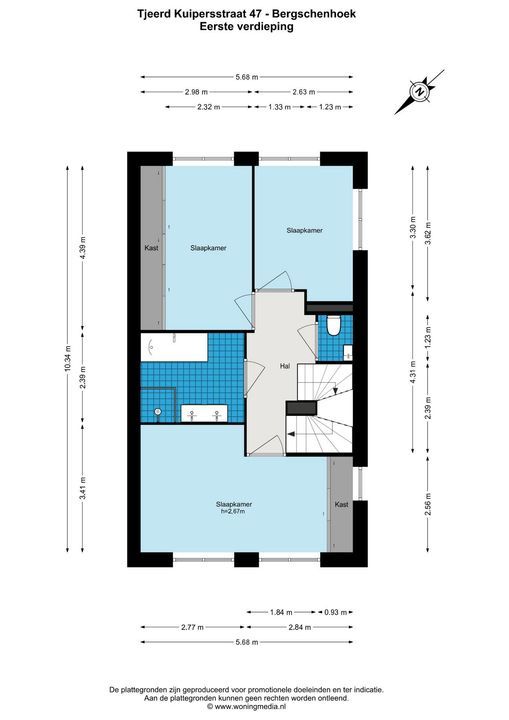
Eerste verdieping:
Op de ruime overloop vind je een separaat toilet en toegang tot alle vertrekken.
Slaapkamer 1, gelegen aan de achterzijde en voorzien van vaste kasten.
Slaapkamer 2, eveneens gelegen aan de achterzijde.
Slaapkamer 3, gelegen aan de voorzijde en voorzien van vaste kasten.

De badkamer is compleet uitgevoerd met een ligbad, douche, dubbele wastafel, spiegel met verlichting en verwarming en een handdoekradiator.

Tweede verdieping:
De ruime overloop met kunststof dakkapel met elektrisch bedienbare screen is momenteel ingericht als chillruimte, maar kan natuurlijk ook dienen als werkplek of speelruimte. Ook is er eenvoudig een extra slaapkamer te realiseren. Daarnaast zijn er praktische knieschotten, toegang tot de vliering en een aparte wasruimte met aansluitingen voor wasmachine en droger, de cv-ketel en de omvormer van de zonnepanelen.

De royale vierde slaapkamer beschikt over vaste kasten en een eigen badkamer met douche, toilet en wastafel. Deze verdieping biedt volop privacy, ideaal als master bedroom of voor een ouder kind dat zijn of haar eigen plek wil.

De pluspunten:
+ Fantastische tuin aan het water met vrij uitzicht
+ Sfeervolle overkapping en buitenkeuken
+ 19 zonnepanelen
+ Moderne keuken en twee badkamers
+ Eigen oprit en garage
+ Gelegen in een kindvriendelijke wijk
+ Oplevering in overleg, conform Lijst van Zaken

Wij nodigen je van harte uit om deze prachtige woning met eigen ogen te bewonderen.

Alle verstrekte informatie moet beschouwd worden als een uitnodiging tot het doen van een bod of om in onderhandeling te treden. De teksten en impressies zijn bedoeld om een goede indruk te geven van het object. Aan de inhoud ervan is de grootst mogelijke zorg besteed. Desondanks is alle informatie nadrukkelijk onder voorbehoud. Er kunnen geen rechten worden ontleend aan deze woninginformatie.

Koopovereenkomst pas rechtsgeldig na ondertekening:
Een mondelinge overeenstemming tussen de particuliere verkoper en de particuliere koper is niet rechtsgeldig. Met andere woorden: er is geen koop. Er is pas sprake van een rechtsgeldige koop als de particuliere verkoper en de particuliere koper de koopovereenkomst hebben ondertekend. Dit vloeit voort uit artikel 7:2 Burgerlijk Wetboek. Een bevestiging van de mondelinge overeenstemming per e-mail of een toegestuurd concept van de koopovereenkomst wordt overigens niet gezien als een 'ondertekende koopovereenkomst'.

Toelichtingsclausule Meetinstructie:
De woning is conform de Branchebrede Meetinstructie (BBMI) opgemeten. De Meetinstructie is bedoeld om een meer eenduidige manier van meten toe te passen voor het geven van een indicatie van de gebruiksoppervlakte. De Meetinstructie sluit verschillen in meetuitkomsten niet volledig uit, door bijvoorbeeld interpretatieverschillen, afrondingen of beperkingen bij het uitvoeren van de meting.
Wij zijn de makelaar van verkoper. Wij adviseren je jouw eigen makelaar mee te nemen voor jouw belangenbehartiging bij de aankoop van jouw toekomstige huis!

Kenmerken

Aanvaarding
Prijs
€ 975.000 k.k.
Status
Beschikbaar
Oplevering
In overleg
Adres
Tjeerd Kuipersstraat 47
Postcode
2662 GM
Plaats
Bergschenhoek
Bouw
Soort woonhuis
Eengezinswoning, 2-onder-1-kapwoning
Soort bouw
Bestaande bouw
Bouwjaar
2020
Onderhoud binnen
Goed
Onderhoud buiten
Goed
Oppervlakten en inhoud
Woonoppervlakte
ca. 184m²
Perceeloppervlakte
ca. 231m²
Overig oppervlakte
ca. 20m²
Inhoud
ca. 916m³
Indeling
Aantal kamers
6
Aantal slaapkamers
4
Aantal badkamers
2
Aantal verdiepingen
3
Voorzieningen
Mechanische ventilatie, Buitenzonwering, Glasvezel kabel, Zonnepanelen
Energie
Energielabel
A
Isolatie
Dakisolatie, Muurisolatie, Vloerisolatie, HR-glas
Warm water
C.V.-ketel
Verwarming
C.V.-ketel
Ketel
Remeha (2020, Combi-ketel, Eigendom)
Buitenruimte
Ligging
Aan het water, In woonwijk, Vrij uitzicht
Tuin
Achtertuin, Voortuin
Achtertuin
Zuidoost, 56m², 580×968cm
Garage
Soort garage
Aangebouwd steen
Capaciteit
1

Plattegronden

Bekijk verloop van de zon

Uw browser ondersteunt geen WebGL

Locatie

[{"address": "Tjeerd Kuipersstraat47","zipCode": "2662 GM","city": "Bergschenhoek","lat": 51.9926229,"lng": 4.4909724,"heading": 0,"pitch": 0}]

Wilt u meer informatie of een afspraak maken?

Bel 010 - 785 08 33, mail of gebruik het onderstaande formulier om contact met ons op te nemen.

Uw bericht is naar ons verzonden. Wij nemen zo snel mogelijk contact met u op.

Sorry, we kunnen helaas niet met zekerheid vaststellen of u een mens of een geautomatiseerde bot/spammer bent. Hierdoor kunnen we het formulier dat u heeft ingevuld niet verzenden. Probeer het opnieuw of neem direct contact op met de makelaar via e-mail.

Er is iets mis gegaan met het versturen van het formulier.
Controleer of u alle velden (goed) heeft ingevoerd en probeer het nog een keer.

Bij het verzenden van dit formulier geef ik toestemming mijn gegevens te verwerken op de manier zoals omschreven in het privacy statement.
recaptcha
reCAPTCHA
PrivacyTerms
van

Goedemiddag 👋

Benieuwd naar de waarde van uw huis?

U weet het al binnen 1 minuut. Laten we beginnen!

Wat is de reden van uw aanvraag?
Ik wil graag...

Er zijn meerdere antwoorden mogelijk.

Wanneer wilt u verhuizen?

We zijn er bijna 🎉

Om het rapport op te maken hebben we een aantal gegevens nodig

recaptcha
reCAPTCHA
PrivacyTerms

Uw woningwaarde wordt berekend... 🚀

loading

Bedankt %name%! De woningwaarde van %address% is berekend 🥳

Check uw mail voor het rapport!

success
Wat is mijn huis waard?