Sweelinckplaats 3, Bergschenhoek

Omschrijving

WONEN IN EEN OASE VAN PRIVACY, RUIMTE EN VERRASSING

Droomt u van absolute privacy, een duik in uw eigen zwembad en een zee aan ruimte, terwijl de stad en natuur binnen handbereik zijn? Welkom in dit unieke en zeer riante familiehuis, gelegen op een royaal perceel van 528 m² met een totaal bruto vloeroppervlak van maar liefst 323 m², waarvan 205 m² aan comfortabel woonoppervlak. Een woning die ruimte, luxe en rust moeiteloos combineert.

Verscholen in het groen, ligt deze ideale woning met een ongekende mate van privacy. Hier ontsnapt u aan de dagelijkse hectiek, terwijl u binnen enkele minuten op de belangrijkste uitvalswegen zit. Voor een ontspannende wandeling hoeft u alleen de voordeur uit te stappen: een prachtig park bevindt zich op steenworp afstand.

Een huis dat blijft verrassen

Dit is geen standaardwoning. De architectuur en indeling zorgen voor een speels karakter met talloze verrassende hoekjes die het huis sfeer en geborgenheid geven. Met een uitzonderlijk woonoppervlak is er voor ieder gezinslid een eigen plek, zonder het gevoel van samenhorigheid te verliezen.

Multifunctioneel & Stiltecomfort

Een bijzonder kenmerk is het extra vertrek op de begane grond. Het extra vertrek heeft openslaande deuren naar de tuin. Dankzij de hoogwaardige extra isolatie is deze ruimte perfect geschikt als:

· Professionele thuiswerkplek of praktijk aan huis
· Geluidsstudio of muziekkamer
· Slaapkamer op de begane grond (levensloopbestendig wonen)

Uw eigen privé-resort

De tuin is een hoofdstuk apart. Op het grote perceel geniet u de hele dag van de zon en optimale vrijheid. De absolute eyecatcher? Het heerlijke buitenzwembad met veranda ernaast, waar u tijdens warme zomerdagen kunt genieten van vakantie in eigen tuin.

Kenmerken in het kort:
· Privacy & Rust: Gelegen op een groot, groen omsloten perceel aan een doodlopende weg.
· Ruimte: Zeer riant woonoppervlak met een speelse, verrassende indeling, waaronder een vide.
· Locatie: Nabij dorpskern met winkels, restaurants, gezondheidscentra, park en uitvalswegen; de ideale combinatie.
· Extra kamer: Geïsoleerde multifunctionele ruimte op de parterre.
· Outdoor living: Zwembad, veranda en diverse zonneterrassen.
· Veiligheid: Elk raam en deur is voorzien van een rolluik
· Parkeren: Altijd verzekerd van een eigen parkeerplek voor de deur. Ruimte voor meerdere auto’s.
· Royaal familiehuis: Door de aanwezigheid van 2 badkamers en 4 grote slaapkamers bij uitstek geschikt voor een gezin met opgroeiende kinderen.
· Verwarming: Met 2 airco units, hybride warmtepomp, 14 zonnepanelen, en geïsoleerde vloer en muren is dit huis klaar voor de toekomst.
· Architectuur: De aanbouw is onder architectuur gebouwd en vormt een kwalitatief hoogwaardige en stijlvolle uitbreiding van de woning.

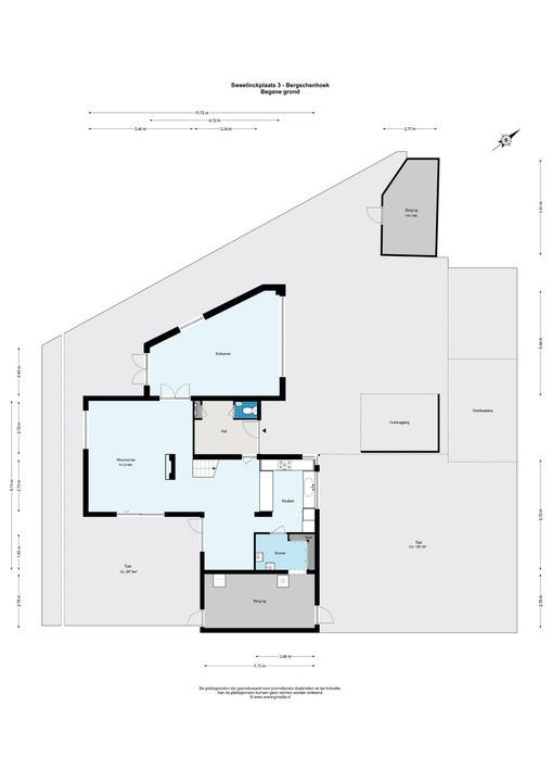
Indeling:

Begane grond:
Ruime entree met meterkast, toilet en toegang tot de woonkamer.
De ruime en sfeervolle woonkamer is voorzien van airconditioning en een open haard. Vanuit de woonkamer geven openslaande deuren toegang tot een ruime multifunctionele ruimte. De schuifpui en een separate deur in de woonkamer geven toegang tot een ruime en zonnige patio.

De keuken bevindt zich aan de voorzijde van de woning en is uitgerust met diverse inbouwapparatuur, waaronder, een gasfornuis, afzuigkap, oven, vaatwasser en koelkast.

Aansluitend aan de keuken bevindt zich een bijkeuken met ingebouwde kasten, cv-ketel, boiler en de binnen unit van de hybride warmtepomp. Vanuit deze ruimte is een ruime inpandige berging (voormalige garage), waar zich de aansluitingen voor de wasmachine en de droger bevinden.

De gehele benedenverdieping, behoudens bijkeuken en berging, is voorzien van een fraaie massief eikenhouten vloer.

Eerste verdieping:
Overloop en vide met toegang tot alle vertrekken. Overloop geeft toegang tot de ruime vliering middels een vlizo trap.
Slaapkamer 1 ca. 2,89 x 5,68 m, met toegang tot het balkon en uitzicht over de tuin.
Slaapkamer 2 ca. 2,85 x 2,90 m, welke in open verbinding staat met slaapkamer 3 middels een toog.
Slaapkamer 3 ca. 2,82 x 2,90 m, toegankelijk via slaapkamer 2 en ideaal te gebruiken als bijvoorbeeld werk-, kleed-, of kinderkamer.
De badkamer is voorzien van een ligbad, douche, toilet en wastafel.
Slaapkamer 4 ca. 2,84 x 5,86 m.
Slaapkamer 5 is bereikbaar via de vide, ca.5,45 x 6,72 m, royale ouderslaapkamer met een badkamer en-suite, voorzien van douche, wastafel en toilet.

Tuin:
Vanuit zowel de woonkamer, het extra vertrek en de inpandige berging is er directe toegang tot de achtertuin.
Het huis heeft aan 3 zijden een fraai aangelegde tuin, deels gelegen op het zuidwesten, waardoor je optimaal kunt genieten van de zon. De tuin beschikt over een buitenzwembad, meerdere terrassen en diverse beplanting die zorgen voor een prettige en groene leefomgeving. Het zwembadwater wordt gereinigd middels een zandfilter en verwarmd door middel van een solar mat verwarming.
De ruime tuin met zijn voorzieningen is een ideale plek om te ontspannen of gezellig buiten te zitten met familie en vrienden.

Bijzonderheden:
- Oplevering in overleg, conform Lijst van Zaken.

In de koopovereenkomst worden de volgende extra clausules opgenomen:
- Bij deze woning (ouder dan 30 jaar) is de ouderdomsclausule van toepassing.
- Bij deze woning (gebouwd voor 1993) is de asbestclausule van toepassing.

Wij nodigen u van harte uit om deze villa met eigen ogen te bewonderen.

Alle verstrekte informatie moet beschouwd worden als een uitnodiging tot het doen van een bod of om in onderhandeling te treden. De teksten en impressies zijn bedoeld om een goede indruk te geven van het object. Aan de inhoud ervan is de grootst mogelijke zorg besteed. Desondanks is alle informatie nadrukkelijk onder voorbehoud. Er kunnen geen rechten worden ontleend aan deze woninginformatie.

Koopovereenkomst pas rechtsgeldig na ondertekening:
Een mondelinge overeenstemming tussen de particuliere verkoper en de particuliere koper is niet rechtsgeldig. Met andere woorden: er is geen koop. Er is pas sprake van een rechtsgeldige koop als de particuliere verkoper en de particuliere koper de koopovereenkomst hebben ondertekend. Dit vloeit voort uit artikel 7:2 Burgerlijk Wetboek. Een bevestiging van de mondelinge overeenstemming per e-mail of een toegestuurd concept van de koopovereenkomst wordt overigens niet gezien als een 'ondertekende koopovereenkomst'.

Toelichtingsclausule Meetinstructie:
De woning is conform de Branche brede Meetinstructie (BBMI) opgemeten. De Meetinstructie is bedoeld om een meer eenduidige manier van meten toe te passen voor het geven van een indicatie van de gebruiksoppervlakte. De Meetinstructie sluit verschillen in meetuitkomsten niet volledig uit, door bijvoorbeeld interpretatieverschillen, afrondingen of beperkingen bij het uitvoeren van de meting.

Wij zijn de makelaar van verkoper. Wij adviseren je jouw eigen makelaar mee te nemen voor jouw belangenbehartiging bij de aankoop van jouw toekomstige huis!

Kenmerken

Aanvaarding
Prijs
€ 1.050.000 k.k.
Status
Beschikbaar
Oplevering
In overleg
Adres
Sweelinckplaats 3
Postcode
2661 HC
Plaats
Bergschenhoek
Bouw
Soort woonhuis
Villa, Geschakelde woning
Soort bouw
Bestaande bouw
Bouwjaar
1976
Onderhoud binnen
Goed
Onderhoud buiten
Goed
Oppervlakten en inhoud
Woonoppervlakte
ca. 204m²
Perceeloppervlakte
ca. 528m²
Overig oppervlakte
ca. 17m²
Inhoud
ca. 882m³
Indeling
Aantal kamers
7
Aantal slaapkamers
5
Aantal badkamers
1
Aantal verdiepingen
2
Voorzieningen
Mechanische ventilatie, Alarminstallatie, Buitenzonwering, Zwembad, Airconditioning
Energie
Energielabel
A
Isolatie
Dubbel glas, Volledig geisoleerd
Warm water
C.V.-ketel
Verwarming
C.V.-ketel
Ketel
Bosch (2013, Combi-ketel, Eigendom)
Buitenruimte
Ligging
In woonwijk
Tuin
Achtertuin, Voortuin, Zijtuin
Schuur
Aangebouwd steen
Faciliteiten schuur
Voorzien van elektra

Plattegronden

Bekijk verloop van de zon

Uw browser ondersteunt geen WebGL

Locatie

[{"address": "Sweelinckplaats3","zipCode": "2661 HC","city": "Bergschenhoek","lat": 51.9859893,"lng": 4.5006773,"heading": 0,"pitch": 0}]

Wilt u meer informatie of een afspraak maken?

Bel 010 - 785 08 33, mail of gebruik het onderstaande formulier om contact met ons op te nemen.

Uw bericht is naar ons verzonden. Wij nemen zo snel mogelijk contact met u op.

Sorry, we kunnen helaas niet met zekerheid vaststellen of u een mens of een geautomatiseerde bot/spammer bent. Hierdoor kunnen we het formulier dat u heeft ingevuld niet verzenden. Probeer het opnieuw of neem direct contact op met de makelaar via e-mail.

Er is iets mis gegaan met het versturen van het formulier.
Controleer of u alle velden (goed) heeft ingevoerd en probeer het nog een keer.

Bij het verzenden van dit formulier geef ik toestemming mijn gegevens te verwerken op de manier zoals omschreven in het privacy statement.
recaptcha
reCAPTCHA
PrivacyTerms
van

Goedenavond 👋

Benieuwd naar de waarde van uw huis?

U weet het al binnen 1 minuut. Laten we beginnen!

Wat is de reden van uw aanvraag?
Ik wil graag...

Er zijn meerdere antwoorden mogelijk.

Wanneer wilt u verhuizen?

We zijn er bijna 🎉

Om het rapport op te maken hebben we een aantal gegevens nodig

recaptcha
reCAPTCHA
PrivacyTerms

Uw woningwaarde wordt berekend... 🚀

loading

Bedankt %name%! De woningwaarde van %address% is berekend 🥳

Check uw mail voor het rapport!

success
Wat is mijn huis waard?