Rembrandtlaan 44, Bergschenhoek

Omschrijving

**** KIJKERSSTOP**** Vanwege de enorme belangstelling voor deze woning kunnen wij op dit moment helaas geen bezichtiging meer met je inplannen.

Ruime, instapklare eengezinswoning in de gewilde wijk 'Oosteindsche Acker'

Ben je op zoek naar een moderne en comfortabele eengezinswoning met een uitgebouwde woonkamer, vier slaapkamers en een zonnige tuin? Dan is deze goed onderhouden woning in de populaire wijk Oosteindsche Acker precies wat je zoekt!

Deze royale woning is gelegen in een rustige en kindvriendelijke buurt op loopafstand van het gezellige centrum van Bergschenhoek. In de directe omgeving vind je diverse scholen, kinderdagverblijven, sport- en recreatievoorzieningen en een uitstekende bereikbaarheid via het openbaar vervoer (bus en RandstadRail) en uitvalswegen (A12, A13, N209 en N472).

Indeling

De ruime voortuin biedt de mogelijkheid om op eigen terrein te parkeren, met plaats voor twee auto's.

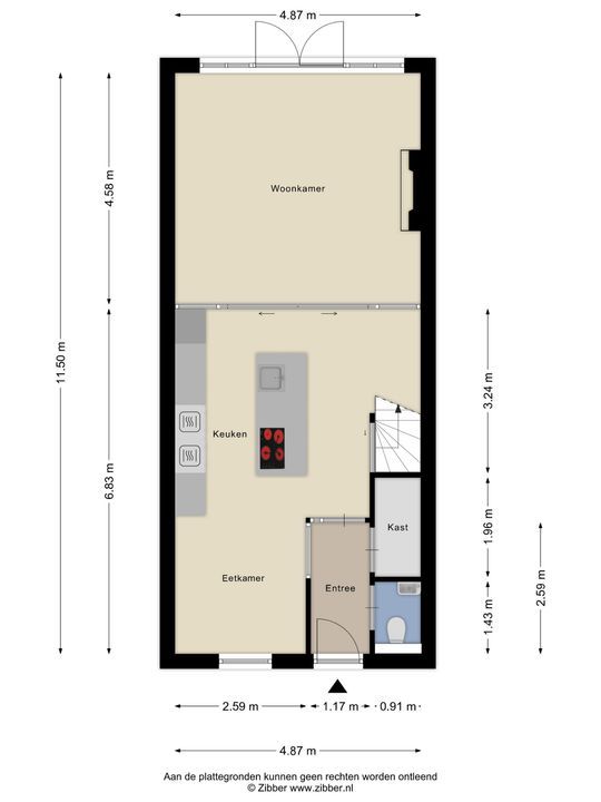
Entree:

Via de overdekte entree bereik je de hal met een modern toilet voorzien van fonteintje en een aparte kast met de opstelplaats voor de cv-ketel. Vanuit de hal heb je toegang tot de keuken.
De moderne, centraal gelegen keuken is van alle gemakken voorzien, waaronder een inductiekookplaat met geïntegreerd afzuigsysteem, Quooker, vaatwasser, stoomoven, combi-oven en een koel-/vriescombinatie.
Aan de voorzijde van de woning bevindt zich de eetkamer, ingericht met een gezellige U-vormige zithoek.

Een schuifpui ensuite scheidt de keuken van de lichte, tuingerichte woonkamer, waardoor een mooie balans ontstaat tussen openheid en knusheid. Over de gehele begane grond ligt een visgraat PVC vloer met vloerverwarming (m.u.v. het toilet).

Achtertuin:

De zonnige achtertuin is gelegen op het zuidwesten en beschikt over een overkapping en een berging met toegang via een verlicht achterpad. De tuin biedt volop privacy en is perfect om te genieten van de middag- en avondzon.

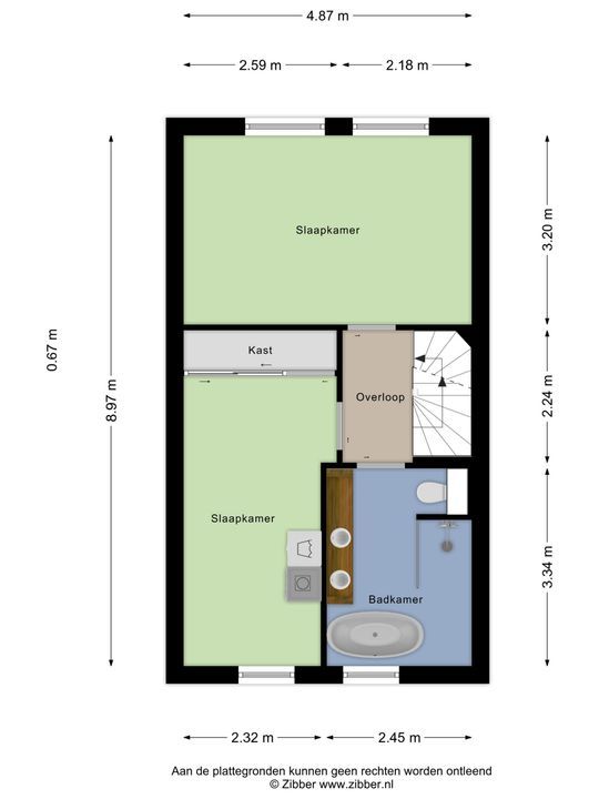
1e verdieping:
Overloop, trapopgang naar de 2e verdieping en toegang tot de badkamer en 2 slaapkamers.
Slaapkamer 1, de ouderslaapkamer bevindt zich aan de achterkant van de woning en is lekker ruim en voorzien van airconditioning en markiezen.
Slaapkamer 2, is gelegen aan de voorzijde van de woning, deze kamer wordt nu gebruikt als wasruimte hier is ook de aansluiting voor de wasmachine en droger. De kamer is voorzien van een vaste kastenwand.
De badkamer is gelegen aan de voorzijde van de woning, beschikt over een ligbad, douche, wastafelmeubel met waskom en handdoekradiator.

Op de gehele 1e verdieping ligt een nette laminaatvloer.

2e verdieping:
Momenteel vormen de kamers één geheel, maar met een kleine aanpassing zijn ze weer volledig te splitsen tot twee afzonderlijke slaapkamers.
De slaapkamer aan de voorzijde wordt momenteel gebruikt als kleedkamer en beschikt over een kleine wasruimte met wastafel.
De slaapkamer aan de achterzijde is voorzien van één groot dakraam en veel bergruimte achter de schotten.
Beide kamers zijn voorzien van airconditioning.

Op de gehele 2e verdieping ligt een nette laminaatvloer.

Bijzonderheden:
+ Energielabel A;
+ Parkeren op eigen terrein;
+ Royale en goed onderhouden eengezinswoning;
+ 13 PV-Panelen;
+ Oplevering in overleg en conform lijst van zaken.


Wij nodigen u van harte uit om deze mooie eengezinswoning met eigen ogen te bewonderen.

Alle verstrekte informatie moet beschouwd worden als een uitnodiging tot het doen van een bod of om in onderhandeling te treden. De teksten en impressies zijn bedoeld om een goede indruk te geven van het object. Aan de inhoud ervan is de grootst mogelijke zorg besteed. Desondanks is alle informatie nadrukkelijk onder voorbehoud. Er kunnen geen rechten worden ontleend aan deze woninginformatie.

Koopovereenkomst pas rechtsgeldig na ondertekening:
Een mondelinge overeenstemming tussen de particuliere verkoper en de particuliere koper is niet rechtsgeldig. Met andere woorden: er is geen koop. Er is pas sprake van een rechtsgeldige koop als de particuliere verkoper en de particuliere koper de koopovereenkomst hebben ondertekend. Dit vloeit voort uit artikel 7:2 Burgerlijk Wetboek. Een bevestiging van de mondelinge overeenstemming per e-mail of een toegestuurd concept van de koopovereenkomst wordt overigens niet gezien als een 'ondertekende koopovereenkomst'.

Toelichtingsclausule Meetinstructie:
De woning is conform de Branchebrede Meetinstructie (BBMI) opgemeten. De Meetinstructie is bedoeld om een meer eenduidige manier van meten toe te passen voor het geven van een indicatie van de gebruiksoppervlakte. De Meetinstructie sluit verschillen in meetuitkomsten niet volledig uit, door bijvoorbeeld interpretatieverschillen, afrondingen of beperkingen bij het uitvoeren van de meting.
Wij zijn de makelaar van verkoper. Wij adviseren je jouw eigen makelaar mee te nemen voor jouw belangenbehartiging bij de aankoop van jouw toekomstige huis!

Kenmerken

Aanvaarding
Status
Verkocht
Oplevering
In overleg
Adres
Rembrandtlaan 44
Postcode
2661 SJ
Plaats
Bergschenhoek
Bouw
Soort woonhuis
Eengezinswoning, Tussenwoning
Soort bouw
Bestaande bouw
Bouwjaar
1997
Onderhoud binnen
Uitstekend
Onderhoud buiten
Uitstekend
Oppervlakten en inhoud
Woonoppervlakte
ca. 133m²
Perceeloppervlakte
ca. 160m²
Inhoud
ca. 472m³
Indeling
Aantal kamers
5
Aantal slaapkamers
4
Aantal badkamers
2
Aantal verdiepingen
3
Voorzieningen
Alarminstallatie, Buitenzonwering, Airconditioning, Dakraam, Zonnepanelen
Energie
Energielabel
A+
Isolatie
Dubbel glas, HR-glas
Warm water
C.V.-ketel
Verwarming
C.V.-ketel
Ketel
(Combi-ketel, Eigendom)
Buitenruimte
Ligging
In woonwijk
Tuin
Achtertuin, Voortuin
Achtertuin
Zuidwest, 58m², 517×1113cm
Schuur
Vrijstaand steen
Faciliteiten schuur
Voorzien van elektra

Plattegronden

Bekijk verloop van de zon

Uw browser ondersteunt geen WebGL

Locatie

[{"address": "Rembrandtlaan44","zipCode": "2661 SJ","city": "Bergschenhoek","lat": 51.9974851,"lng": 4.5049455,"heading": 0,"pitch": 0}]

Wilt u meer informatie of een afspraak maken?

Bel 010 - 785 08 33, mail of gebruik het onderstaande formulier om contact met ons op te nemen.

Uw bericht is naar ons verzonden. Wij nemen zo snel mogelijk contact met u op.

Sorry, we kunnen helaas niet met zekerheid vaststellen of u een mens of een geautomatiseerde bot/spammer bent. Hierdoor kunnen we het formulier dat u heeft ingevuld niet verzenden. Probeer het opnieuw of neem direct contact op met de makelaar via e-mail.

Er is iets mis gegaan met het versturen van het formulier.
Controleer of u alle velden (goed) heeft ingevoerd en probeer het nog een keer.

Bij het verzenden van dit formulier geef ik toestemming mijn gegevens te verwerken op de manier zoals omschreven in het privacy statement.
recaptcha
reCAPTCHA
PrivacyTerms
van

Goedenavond 👋

Benieuwd naar de waarde van uw huis?

U weet het al binnen 1 minuut. Laten we beginnen!

Wat is de reden van uw aanvraag?
Ik wil graag...

Er zijn meerdere antwoorden mogelijk.

Wanneer wilt u verhuizen?

We zijn er bijna 🎉

Om het rapport op te maken hebben we een aantal gegevens nodig

recaptcha
reCAPTCHA
PrivacyTerms

Uw woningwaarde wordt berekend... 🚀

loading

Bedankt %name%! De woningwaarde van %address% is berekend 🥳

Check uw mail voor het rapport!

success
Wat is mijn huis waard?