Piet Kramerzoom 11, Bergschenhoek

Omschrijving

Starters opgelet!

Deze dubbele bovenwoning op de 1e en 2e verdieping beschikt over een moderne keuken en badkamer en ligt in de geliefde wijk Parkzoom 3 in Bergschenhoek. Een wijk met veel groen en water, en een gevarieerd straatbeeld. Je loopt zo het Annie M.G. Schmidtpark in, het gezondheidscentrum en het openbaar vervoer liggen om de hoek en fiets je langs het naastgelegen zwembad De Windas, dan ben je in een paar minuten in Berkel en Rodenrijs voor een uitgebreid winkelaanbod. Ook scholen, kinderopvang en sportvoorzieningen liggen op loop- en fietsafstand.

Indeling

1e verdieping:
Hal met meterkast en toilet. De lichte woonkamer bevindt zich aan de achterzijde van de woning. Aan de voorzijde ligt de open, moderne keuken die is voorzien van een inductiekookplaat, afzuigkap, combimagnetron, koel-vriescombinatie en een wijnkoelkast.

De gehele verdieping is afgewerkt met een mooie pvc-vloer met vloerverwarming.

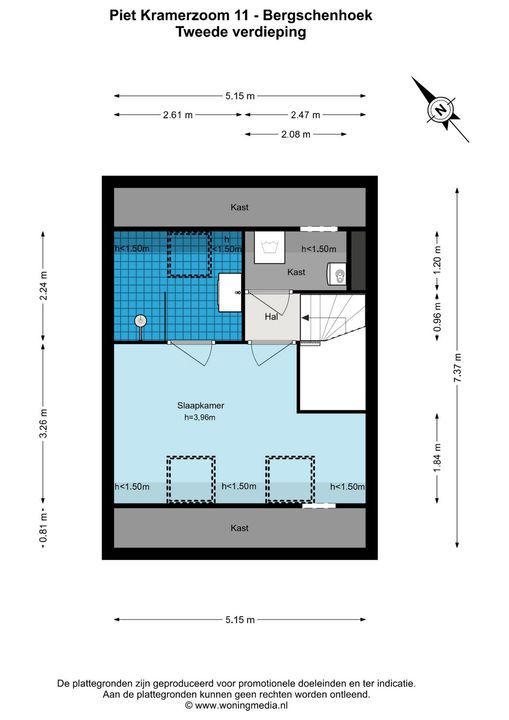
2e verdieping:
De overloop geeft toegang tot de slaapkamer en de berging, waar de cv-ketel staat en waar je de aansluitingen voor de wasmachine en droger vindt.

De ruime slaapkamer ligt aan de achterzijde. Door de twee dakramen komt er veel licht binnen en achter de knieschotten is extra bergruimte aanwezig.

Vanuit de slaapkamer bereik je de nette, volledig betegelde badkamer met douche, wastafel, handdoekradiator en mechanische ventilatie.

Ook deze verdieping is voorzien van dezelfde pvc-vloer.

Bijzonderheden:
- Bouwjaar 2020;
- De woonverdieping is voorzien van vloerverwarming;
- 4 Zonnepanelen voor privé gebruik;
- Vrij parkeren rondom de woning;
- Actieve VvE maandelijkse bijdrage € 67,67;
- Goede ligging, vlakbij openbaar vervoer, winkels, scholen en parken.

Wij nodigen je van harte uit om dit leuke appartement met eigen ogen te bewonderen.

Alle verstrekte informatie moet beschouwd worden als een uitnodiging tot het doen van een bod of om in onderhandeling te treden. De teksten en impressies zijn bedoeld om een goede indruk te geven van het object. Aan de inhoud ervan is de grootst mogelijke zorg besteed. Desondanks is alle informatie nadrukkelijk onder voorbehoud. Er kunnen geen rechten worden ontleend aan deze woninginformatie.

Koopovereenkomst pas rechtsgeldig na ondertekening:
Een mondelinge overeenstemming tussen de particuliere verkoper en de particuliere koper is niet rechtsgeldig. Met andere woorden: er is geen koop. Er is pas sprake van een rechtsgeldige koop als de particuliere verkoper en de particuliere koper de koopovereenkomst hebben ondertekend. Dit vloeit voort uit artikel 7:2 Burgerlijk Wetboek. Een bevestiging van de mondelinge overeenstemming per e-mail of een toegestuurd concept van de koopovereenkomst wordt overigens niet gezien als een 'ondertekende koopovereenkomst'.

Toelichtingsclausule Meetinstructie:
De woning is conform de Branchebrede Meetinstructie (BBMI) opgemeten. De Meetinstructie is bedoeld om een meer eenduidige manier van meten toe te passen voor het geven van een indicatie van de gebruiksoppervlakte. De Meetinstructie sluit verschillen in meetuitkomsten niet volledig uit, door bijvoorbeeld interpretatieverschillen, afrondingen of beperkingen bij het uitvoeren van de meting.

Kenmerken

Aanvaarding
Bijdrage VVE
€ 68
Status
Verkocht
Oplevering
In overleg
Adres
Piet Kramerzoom 11
Postcode
2662 GP
Plaats
Bergschenhoek
Bouw
Soort appartement
Bovenwoning, Appartement
Woonlaag
1
Soort bouw
Bestaande bouw
Bouwjaar
2020
Onderhoud binnen
Goed
Onderhoud buiten
Goed
Oppervlakten en inhoud
Woonoppervlakte
ca. 63m²
Inhoud
ca. 311m³
Indeling
Aantal kamers
2
Aantal slaapkamers
1
Aantal badkamers
1
Aantal verdiepingen
2
Voorzieningen
Mechanische ventilatie, Dakraam, Glasvezel kabel, Zonnepanelen
Energie
Energielabel
A
Isolatie
Dakisolatie, Muurisolatie, Vloerisolatie, Volledig geisoleerd, HR-glas
Warm water
C.V.-ketel
Verwarming
C.V.-ketel, Vloerverwarming gedeeltelijk
Ketel
Intergas (2020, Combi-ketel, Eigendom)
Buitenruimte
Ligging
Aan park, In woonwijk, Vrij uitzicht
Schuur
Box

Plattegronden

Bekijk verloop van de zon

Uw browser ondersteunt geen WebGL

Locatie

[{"address": "Piet Kramerzoom11","zipCode": "2662 GP","city": "Bergschenhoek","lat": 51.993653,"lng": 4.4899528,"heading": 0,"pitch": 0}]

Wilt u meer informatie of een afspraak maken?

Bel 010 - 785 08 33, mail of gebruik het onderstaande formulier om contact met ons op te nemen.

Uw bericht is naar ons verzonden. Wij nemen zo snel mogelijk contact met u op.

Sorry, we kunnen helaas niet met zekerheid vaststellen of u een mens of een geautomatiseerde bot/spammer bent. Hierdoor kunnen we het formulier dat u heeft ingevuld niet verzenden. Probeer het opnieuw of neem direct contact op met de makelaar via e-mail.

Er is iets mis gegaan met het versturen van het formulier.
Controleer of u alle velden (goed) heeft ingevoerd en probeer het nog een keer.

Bij het verzenden van dit formulier geef ik toestemming mijn gegevens te verwerken op de manier zoals omschreven in het privacy statement.
recaptcha
reCAPTCHA
PrivacyTerms
van

Goedenavond 👋

Benieuwd naar de waarde van uw huis?

U weet het al binnen 1 minuut. Laten we beginnen!

Wat is de reden van uw aanvraag?
Ik wil graag...

Er zijn meerdere antwoorden mogelijk.

Wanneer wilt u verhuizen?

We zijn er bijna 🎉

Om het rapport op te maken hebben we een aantal gegevens nodig

recaptcha
reCAPTCHA
PrivacyTerms

Uw woningwaarde wordt berekend... 🚀

loading

Bedankt %name%! De woningwaarde van %address% is berekend 🥳

Check uw mail voor het rapport!

success
Wat is mijn huis waard?