Oltmansstraat 17, Bergschenhoek

Omschrijving

Wonen aan de Oltmansstraat 17 betekent elke dag genieten van licht, ruimte en rust.
Bij binnenkomst valt direct de royale, uitgebouwde woonkamer op: een lichte en uitnodigende leefruimte met grote raampartijen, vloerverwarming en een schuifpui naar de zonnige tuin. Hier lopen binnen en buiten op een natuurlijke manier in elkaar over.

De aparte keuken met gezellig zitgedeelte is recent vernieuwd en voorzien van moderne inbouwapparatuur. Een fijne plek om uitgebreid te koken of samen te borrelen terwijl je uitkijkt over de voortuin.
Met vier slaapkamers, een praktische zolderverdieping en een royale achtertuin op het westen is dit een heerlijke woning voor wie ruimte zoekt, maar ook sfeer en privacy waardeert.

Tuin & buitenruimte
De grote, verzorgde achtertuin ligt op het westen en biedt meerdere terrassen, een sfeervolle overkapping en een vlonder met prachtig uitzicht over de singel. Door de vrije ligging aan het water is er altijd wel een plek te vinden in de zon of juist in de schaduw, ideaal voor lange zomeravonden, spelen, tuinieren of ontspannen aan het water.
Aan de voorzijde kunnen drie auto’s op eigen terrein worden geparkeerd en is er directe toegang tot de garage.

Indeling

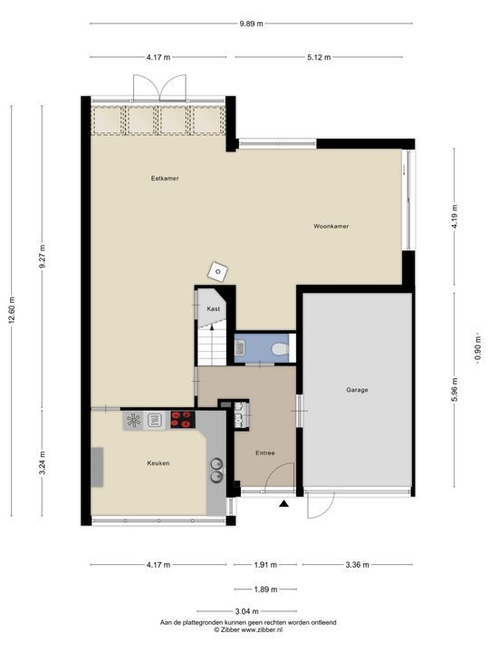
Begane grond:
• Ruime hal/entree met toilet en meterkast
• Uitgebouwde, lichte woonkamer met vloerverwarming, plavuizenvloer, openslaande deuren én schuifpui naar de tuin
• Aparte keuken in L-opstelling met o.a. inductiekookplaat, vaatwasser, dubbele spoelbak, afzuigkap, oven en koel-/vriescombinatie

1e verdieping:
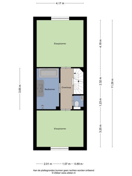
• Overloop met separaat toilet
• Twee ruime slaapkamers met Frans balkon
• Moderne badkamer met ligbad, douche, wastafelmeubel, vloerverwarming en designradiator

2e verdieping:
• Twee lichte slaapkamers, beide met Frans balkon
• Fonteintje en aansluitingen voor wasmachine en droger
• Extra afsluitbare berging: ideaal voor opslag, koffers, kerstspullen of hobby

Locatie:
De woning ligt in een rustig, autoluw hofje zonder doorgaand verkeer, ideaal voor rustzoekers en gezinnen.
Scholen, winkels, kinderopvang, sportverenigingen, horeca en het centrum van Bergschenhoek liggen op loopafstand.
Daarnaast fiets je zo naar recreatiegebied Rottemeren, natuurgebieden en diverse sport- en speelvoorzieningen.
De nieuwe verbinding met de A16 en omliggende uitvalswegen (N209, A13, A12, A20) zorgt ervoor dat je binnen korte tijd in Rotterdam, Den Haag, Delft of Zoetermeer bent.
Hier woon je rustig, maar toch midden in het gemak van de Randstad.

Bijzonderheden:
• Bouwjaar 2001
• Woonoppervlakte ca. 174 m²
• Perceel van ca. 635 m²
• Royale woonkamer met vloerverwarming
• Zonnige tuin op het westen, direct aan het water
• Vier slaapkamers + extra zoldergedeelte met bergruimte en deur
• Moderne badkamer + extra toilet op de 1e verdieping
• Fonteintje en witgoedaansluitingen op zolder
• Eigen oprit voor drie auto’s + garage
• Rustig, autoluw hofje
• Scholen, winkels en OV op loopafstand
• Oplevering in overleg

Dit is een woning die je niet alleen moet zien, maar vooral moet vóelen.
We laten je graag ervaren hoe licht, ruimte en uitzicht hier samenkomen, welkom aan de Oltmansstraat 17.

Wij nodigen je van harte uit om deze ruime woning met eigen ogen te bewonderen.

Alle verstrekte informatie moet beschouwd worden als een uitnodiging tot het doen van een bod of om in onderhandeling te treden. De teksten en impressies zijn bedoeld om een goede indruk te geven van het object. Aan de inhoud ervan is de grootst mogelijke zorg besteed. Desondanks is alle informatie nadrukkelijk onder voorbehoud. Er kunnen geen rechten worden ontleend aan deze woninginformatie.

Koopovereenkomst pas rechtsgeldig na ondertekening:
Een mondelinge overeenstemming tussen de particuliere verkoper en de particuliere koper is niet rechtsgeldig. Met andere woorden: er is geen koop. Er is pas sprake van een rechtsgeldige koop als de particuliere verkoper en de particuliere koper de koopovereenkomst hebben ondertekend. Dit vloeit voort uit artikel 7:2 Burgerlijk Wetboek. Een bevestiging van de mondelinge overeenstemming per e-mail of een toegestuurd concept van de koopovereenkomst wordt overigens niet gezien als een 'ondertekende koopovereenkomst'.

Toelichtingsclausule Meetinstructie:
De woning is conform de Branchebrede Meetinstructie (BBMI) opgemeten. De Meetinstructie is bedoeld om een meer eenduidige manier van meten toe te passen voor het geven van een indicatie van de gebruiksoppervlakte. De Meetinstructie sluit verschillen in meetuitkomsten niet volledig uit, door bijvoorbeeld interpretatieverschillen, afrondingen of beperkingen bij het uitvoeren van de meting.

Kenmerken

Aanvaarding
Prijs
€ 998.000 k.k.
Status
Beschikbaar
Oplevering
In overleg
Adres
Oltmansstraat 17
Postcode
2662 AA
Plaats
Bergschenhoek
Bouw
Soort woonhuis
Eengezinswoning, Geschakelde woning
Soort bouw
Bestaande bouw
Bouwjaar
2001
Onderhoud binnen
Goed
Onderhoud buiten
Goed
Oppervlakten en inhoud
Woonoppervlakte
ca. 174m²
Perceeloppervlakte
ca. 635m²
Overig oppervlakte
ca. 20m²
Inhoud
ca. 685m³
Indeling
Aantal kamers
6
Aantal slaapkamers
4
Aantal badkamers
1
Aantal verdiepingen
3
Voorzieningen
Mechanische ventilatie, Rolluiken, Buitenzonwering, Frans balkon, Glasvezel kabel
Energie
Energielabel
A
Warm water
Stadsverwarming
Verwarming
Stadsverwarming
Buitenruimte
Ligging
Aan het water, In woonwijk, Beschutte ligging
Tuin
Achtertuin, Voortuin, Zijtuin
Achtertuin
Noordwest, 494m², 1758×2809cm
Schuur
Vrijstaand hout
Garage
Soort garage
Aangebouwd steen
Capaciteit
1
Afmetingen
20m², 336×596

Plattegronden

Bekijk verloop van de zon

Uw browser ondersteunt geen WebGL

Locatie

[{"address": "Oltmansstraat17","zipCode": "2662 AA","city": "Bergschenhoek","lat": 51.9860807,"lng": 4.4957788,"heading": 0,"pitch": 0}]

Wilt u meer informatie of een afspraak maken?

Bel 010 - 785 08 33, mail of gebruik het onderstaande formulier om contact met ons op te nemen.

Uw bericht is naar ons verzonden. Wij nemen zo snel mogelijk contact met u op.

Sorry, we kunnen helaas niet met zekerheid vaststellen of u een mens of een geautomatiseerde bot/spammer bent. Hierdoor kunnen we het formulier dat u heeft ingevuld niet verzenden. Probeer het opnieuw of neem direct contact op met de makelaar via e-mail.

Er is iets mis gegaan met het versturen van het formulier.
Controleer of u alle velden (goed) heeft ingevoerd en probeer het nog een keer.

Bij het verzenden van dit formulier geef ik toestemming mijn gegevens te verwerken op de manier zoals omschreven in het privacy statement.
recaptcha
reCAPTCHA
PrivacyTerms
van

Goedenavond 👋

Benieuwd naar de waarde van uw huis?

U weet het al binnen 1 minuut. Laten we beginnen!

Wat is de reden van uw aanvraag?
Ik wil graag...

Er zijn meerdere antwoorden mogelijk.

Wanneer wilt u verhuizen?

We zijn er bijna 🎉

Om het rapport op te maken hebben we een aantal gegevens nodig

recaptcha
reCAPTCHA
PrivacyTerms

Uw woningwaarde wordt berekend... 🚀

loading

Bedankt %name%! De woningwaarde van %address% is berekend 🥳

Check uw mail voor het rapport!

success
Wat is mijn huis waard?