Koolzaadveld 15, Bergschenhoek

Omschrijving

Op zoek naar een ruime twee-onder-een-kapwoning met eigen oprit en garage?

Dat is vanaf nu mogelijk! Wij bieden deze goed onderhouden twee-onder-een-kapwoning aan, gelegen in een gezellige en kindvriendelijke woonwijk. De woning beschikt over een eigen oprit, garage, een royale woonkamer, nette keuken, drie slaapkamers en een fraai aangelegde tuin op het noordoosten.

De ligging is ideaal: rustig en kindvriendelijk, op loopafstand van het centrum van Bergschenhoek, diverse basisscholen, kinderdagverblijven en speeltuintjes. Ook het centrum van Berkel en Rodenrijs en tal van sport- en recreatiemogelijkheden – zoals zwembad "De Windas", speeltuin “Tuin van Floddertje” en wandelpark "De Groenzoom" bevinden zich op korte fietsafstand.

Daarnaast zijn metrostation Rodenrijs (ca. 10 minuten fietsen) en het bruisende centrum van Rotterdam (ca. 25 minuten fietsen) goed bereikbaar. Ook de uitvalswegen richting Rotterdam, Delft, Utrecht en Den Haag zijn uitstekend toegankelijk.

Kortom; een ideale gezinswoning op een toplocatie!

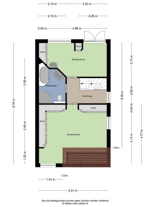
Indeling

Begane grond:
Entree/hal met meterkast, toiletruimte, trapopgang naar de eerste verdieping en toegang tot de woonkamer.

De royale woonkamer is heerlijk licht dankzij de grote raampartijen. De ruimte is voorzien van een mooie plavuizen vloer met vloerverwarming en beschikt over een zonnescreen. Aan de achterzijde van de woning bevindt zich de luxe Siematic keuken in L-opstelling met stenen aanrechtblad, uitgerust met diverse Siemens inbouwapparatuur, waaronder een combi-oven, oven, koelkast, inductiekookplaat, afzuigkap en een Quooker. Via de schuifpui bereik je de zonnige achtertuin, gelegen op het noordoosten. Achterin de tuin vind je een sfeervolle overkapping met berging. Aan de garage bevindt zich bovendien nog een extra berging voor het stallen van fietsen.

Vanuit de keuken is er toegang tot de bijkeuken, met aansluitingen voor wasmachine en droger, en de opstelplaats van de cv-ketel. Vanuit hier is de inpandige garage bereikbaar.

1e verdieping:
Ruime overloop met toegang tot de twee slaapkamer en de badkamer.
Slaapkamer 1 (ca. 4.77 x 5.51 m), gelegen aan de voorzijde, beschikt over vaste kasten en een laminaatvloer.
Slaapkamer 2 (ca. 2.73 x 5.51 m), aan de achterzijde, is eveneens voorzien van vaste kasten én een wastafel.
De badkamer is compleet uitgevoerd met ligbad, douche, wastafel, toilet, mechanische ventilatie en comfortabele vloerverwarming.

2e verdieping:
Overloop met knieschotten, ideaal voor extra bergruimte.
De derde slaapkamer is voorzien van vaste kastruimte.

Bijzonderheden:
- Bouwjaar 1987, woonoppervlakte ca. 124 m2
- Gelegen in een kindvriendelijke wijk, dichtbij alle voorzieningen
- Verwarming en warm water via cv-ketel (2020)
- Inpandige garage
- Fraai aangelegde zonnige tuin met overkapping en berging
- Oplevering in overleg en conform Lijst van zaken.

In de koopovereenkomst worden de volgende extra clausules opgenomen:
- ouderdomsclausule (standaard bij woningen die ouder zijn dan 30 jaar).
- asbestclausule (standaard bij woningen die gebouwd zijn voor 1993).
- Niet-Bewoners clausule.

Wij nodigen je van harte uit om deze leuke woning met eigen ogen te bewonderen.

Alle verstrekte informatie moet beschouwd worden als een uitnodiging tot het doen van een bod of om in onderhandeling te treden. De teksten en impressies zijn bedoeld om een goede indruk te geven van het object. Aan de inhoud ervan is de grootst mogelijke zorg besteed. Desondanks is alle informatie nadrukkelijk onder voorbehoud. Er kunnen geen rechten worden ontleend aan deze woninginformatie.

Koopovereenkomst pas rechtsgeldig na ondertekening:
Een mondelinge overeenstemming tussen de particuliere verkoper en de particuliere koper is niet rechtsgeldig. Met andere woorden: er is geen koop. Er is pas sprake van een rechtsgeldige koop als de particuliere verkoper en de particuliere koper de koopovereenkomst hebben ondertekend. Dit vloeit voort uit artikel 7:2 Burgerlijk Wetboek. Een bevestiging van de mondelinge overeenstemming per e-mail of een toegestuurd concept van de koopovereenkomst wordt overigens niet gezien als een 'ondertekende koopovereenkomst'.

Toelichtingsclausule Meetinstructie:
De woning is conform de Branchebrede Meetinstructie (BBMI) opgemeten. De Meetinstructie is bedoeld om een meer eenduidige manier van meten toe te passen voor het geven van een indicatie van de gebruiksoppervlakte. De Meetinstructie sluit verschillen in meetuitkomsten niet volledig uit, door bijvoorbeeld interpretatieverschillen, afrondingen of beperkingen bij het uitvoeren van de meting.

Kenmerken

Aanvaarding
Prijs
€ 650.000 k.k.
Status
Verkocht onder voorbehoud
Oplevering
In overleg
Adres
Koolzaadveld 15
Postcode
2661 VR
Plaats
Bergschenhoek
Bouw
Soort woonhuis
Eengezinswoning, 2-onder-1-kapwoning
Soort bouw
Bestaande bouw
Bouwjaar
1987
Onderhoud binnen
Goed
Onderhoud buiten
Goed
Oppervlakten en inhoud
Woonoppervlakte
ca. 124m²
Perceeloppervlakte
ca. 305m²
Overig oppervlakte
ca. 17m²
Inhoud
ca. 502m³
Indeling
Aantal kamers
4
Aantal slaapkamers
3
Aantal badkamers
1
Aantal verdiepingen
3
Voorzieningen
Mechanische ventilatie, TV-Kabel, Buitenzonwering, Schuifpui, Dakraam, Glasvezel kabel
Energie
Energielabel
C
Isolatie
Muurisolatie, Vloerisolatie, Dubbel glas
Warm water
C.V.-ketel
Verwarming
C.V.-ketel, Vloerverwarming gedeeltelijk
Ketel
Remeha (2020, Combi-ketel, Eigendom)
Buitenruimte
Ligging
In woonwijk
Tuin
Achtertuin, Voortuin, Zijtuin
Achtertuin
Zuidwest, 124m², 997×1244cm
Schuur
Vrijstaand hout
Garage
Soort garage
Inpandig
Capaciteit
1

Plattegronden

Bekijk verloop van de zon

Uw browser ondersteunt geen WebGL

Locatie

[{"address": "Koolzaadveld15","zipCode": "2661 VR","city": "Bergschenhoek","lat": 51.9911186,"lng": 4.491674,"heading": 0,"pitch": 0}]

Wilt u meer informatie of een afspraak maken?

Bel 010 - 785 08 33, mail of gebruik het onderstaande formulier om contact met ons op te nemen.

Uw bericht is naar ons verzonden. Wij nemen zo snel mogelijk contact met u op.

Sorry, we kunnen helaas niet met zekerheid vaststellen of u een mens of een geautomatiseerde bot/spammer bent. Hierdoor kunnen we het formulier dat u heeft ingevuld niet verzenden. Probeer het opnieuw of neem direct contact op met de makelaar via e-mail.

Er is iets mis gegaan met het versturen van het formulier.
Controleer of u alle velden (goed) heeft ingevoerd en probeer het nog een keer.

Bij het verzenden van dit formulier geef ik toestemming mijn gegevens te verwerken op de manier zoals omschreven in het privacy statement.
recaptcha
reCAPTCHA
PrivacyTerms
van

Goedenavond 👋

Benieuwd naar de waarde van uw huis?

U weet het al binnen 1 minuut. Laten we beginnen!

Wat is de reden van uw aanvraag?
Ik wil graag...

Er zijn meerdere antwoorden mogelijk.

Wanneer wilt u verhuizen?

We zijn er bijna 🎉

Om het rapport op te maken hebben we een aantal gegevens nodig

recaptcha
reCAPTCHA
PrivacyTerms

Uw woningwaarde wordt berekend... 🚀

loading

Bedankt %name%! De woningwaarde van %address% is berekend 🥳

Check uw mail voor het rapport!

success
Wat is mijn huis waard?