Hoedemakerlaan 12, Bergschenhoek

Omschrijving

Wonen in een kindvriendelijke wijk, in een ruime 5-kamer hoekwoning met een moderne keuken en badkamer én een 14 meter diepe achtertuin met sfeervolle overkapping.

De woning is gelegen op een prachtige locatie in een kindvriendelijke wijk en op loopafstand van de winkels “Dorp Bergschenhoek”. Ook ligt de woning in de nabije omgeving van scholen, openbaar vervoer en diverse recreatie voorzieningen. De grote steden zoals Rotterdam, Delft, Zoetermeer en Den Haag zijn zowel via het openbaar vervoer (bus en RandstadRail) als via de uitvalswegen (A12, A13, A16, N209 en N472) goed bereikbaar.

Kortom: deze woning heeft op deze locatie heel wat te bieden. Kom jij snel een kijkje nemen?

De pluspunten:
+ Kunststof dakkapellen aan zowel de voor- als achterzijde
+ Eigen oprit met parkeergelegenheid voor twee auto’s
+ Moderne keuken en badkamer
+ Zonnige, diepe achtertuin gelegen op het westen
+ Oplevering in overleg, conform Lijst van Zaken.

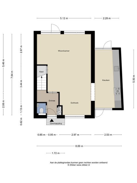
Indeling

Begane grond:
Ruime oprit met plaats voor twee auto’s en toegang tot zowel de berging als de woning.

Entree/hal met meterkast, toilet, trapopgang naar de eerste verdieping en toegang tot de woonkamer.
De ruime woonkamer is voorzien van een laminaatvloer, beschikt over een praktische trapkast en loopt aansluitend over in een gezellige eethoek, ideaal voor lange diners en gezellige momenten met familie en vrienden.

De moderne, uitgebouwde keuken is uitgerust met diverse inbouwapparatuur, waaronder een koel-vriescombinatie, oven, magnetron, gasfornuis, afzuigkap en spoelbak met mengkraan.

Tuin:
Vanuit zowel de keuken als de woonkamer is er toegang tot de ruime, circa 14 meter diepe en zonnige achtertuin, gelegen op het westen.
Achterin de tuin bevindt zich een sfeervolle overkapping met berging: de ideale plek om tot in de late uurtjes buiten te genieten. Daarnaast is er een zonnescherm aanwezig.

1e verdieping:
Overloop met toegang tot twee slaapkamers aan de achterzijde en één slaapkamer aan de voorzijde.

De moderne badkamer is voorzien van een ligbad, douche, wastafel, spiegel met verlichting en verwarming, een tweede toilet en een handdoekradiator.

2e verdieping:
Overloop met aansluitingen voor wasmachine en droger.

Ruime vierde (ouder)slaapkamer met kunststof dakkapellen aan zowel de voor- als achterzijde, beide voorzien van elektrische rolluiken. Hierdoor is er de mogelijkheid om deze verdieping op te splitsen in twee slaapkamers. Tevens zijn hier vaste kasten aanwezig; achter deze kasten bevindt zich de opstelplaats van de cv-ketel.

In de koopovereenkomst worden de volgende extra clausules opgenomen:
- Bij deze woning (ouder dan 30 jaar) is de ouderdomsclausule van toepassing.
- Bij deze woning (gebouwd voor 1993) is de asbestclausule van toepassing.

Wij nodigen je van harte uit om deze ruime eengezinswoning met eigen ogen te bewonderen.

Alle verstrekte informatie moet beschouwd worden als een uitnodiging tot het doen van een bod of om in onderhandeling te treden. De teksten en impressies zijn bedoeld om een goede indruk te geven van het object. Aan de inhoud ervan is de grootst mogelijke zorg besteed. Desondanks is alle informatie nadrukkelijk onder voorbehoud. Er kunnen geen rechten worden ontleend aan deze woninginformatie.

Koopovereenkomst pas rechtsgeldig na ondertekening:
Een mondelinge overeenstemming tussen de particuliere verkoper en de particuliere koper is niet rechtsgeldig. Met andere woorden: er is geen koop. Er is pas sprake van een rechtsgeldige koop als de particuliere verkoper en de particuliere koper de koopovereenkomst hebben ondertekend. Dit vloeit voort uit artikel 7:2 Burgerlijk Wetboek. Een bevestiging van de mondelinge overeenstemming per e-mail of een toegestuurd concept van de koopovereenkomst wordt overigens niet gezien als een 'ondertekende koopovereenkomst'.

Toelichtingsclausule Meetinstructie:
De woning is conform de Branchebrede Meetinstructie (BBMI) opgemeten. De Meetinstructie is bedoeld om een meer eenduidige manier van meten toe te passen voor het geven van een indicatie van de gebruiksoppervlakte. De Meetinstructie sluit verschillen in meetuitkomsten niet volledig uit, door bijvoorbeeld interpretatieverschillen, afrondingen of beperkingen bij het uitvoeren van de meting.
Wij zijn de makelaar van verkoper. Wij adviseren je jouw eigen makelaar mee te nemen voor jouw belangenbehartiging bij de aankoop van jouw toekomstige huis!

Kenmerken

Aanvaarding
Prijs
€ 550.000 k.k.
Status
Beschikbaar
Oplevering
In overleg
Adres
Hoedemakerlaan 12
Postcode
2661 BX
Plaats
Bergschenhoek
Bouw
Soort woonhuis
Eengezinswoning, Hoekwoning
Soort bouw
Bestaande bouw
Bouwjaar
1983
Onderhoud binnen
Goed
Onderhoud buiten
Goed
Oppervlakten en inhoud
Woonoppervlakte
ca. 118m²
Perceeloppervlakte
ca. 257m²
Inhoud
ca. 417m³
Indeling
Aantal kamers
5
Aantal slaapkamers
4
Aantal badkamers
1
Aantal verdiepingen
3
Voorzieningen
Mechanische ventilatie, TV-Kabel, Buitenzonwering, Glasvezel kabel
Energie
Energielabel
C
Isolatie
Dakisolatie, Dubbel glas
Warm water
C.V.-ketel
Verwarming
C.V.-ketel
Ketel
Remeha (2011, Combi-ketel, Eigendom)
Buitenruimte
Ligging
In woonwijk
Tuin
Achtertuin, Voortuin
Achtertuin
West, 101m², 712×1413cm
Schuur
Aangebouwd steen

Plattegronden

Bekijk verloop van de zon

Uw browser ondersteunt geen WebGL

Locatie

[{"address": "Hoedemakerlaan12","zipCode": "2661 BX","city": "Bergschenhoek","lat": 51.9818255,"lng": 4.4992356,"heading": 0,"pitch": 0}]

Wilt u meer informatie of een afspraak maken?

Bel 010 - 785 08 33, mail of gebruik het onderstaande formulier om contact met ons op te nemen.

Uw bericht is naar ons verzonden. Wij nemen zo snel mogelijk contact met u op.

Sorry, we kunnen helaas niet met zekerheid vaststellen of u een mens of een geautomatiseerde bot/spammer bent. Hierdoor kunnen we het formulier dat u heeft ingevuld niet verzenden. Probeer het opnieuw of neem direct contact op met de makelaar via e-mail.

Er is iets mis gegaan met het versturen van het formulier.
Controleer of u alle velden (goed) heeft ingevoerd en probeer het nog een keer.

Bij het verzenden van dit formulier geef ik toestemming mijn gegevens te verwerken op de manier zoals omschreven in het privacy statement.
recaptcha
reCAPTCHA
PrivacyTerms
van

Goedemiddag 👋

Benieuwd naar de waarde van uw huis?

U weet het al binnen 1 minuut. Laten we beginnen!

Wat is de reden van uw aanvraag?
Ik wil graag...

Er zijn meerdere antwoorden mogelijk.

Wanneer wilt u verhuizen?

We zijn er bijna 🎉

Om het rapport op te maken hebben we een aantal gegevens nodig

recaptcha
reCAPTCHA
PrivacyTerms

Uw woningwaarde wordt berekend... 🚀

loading

Bedankt %name%! De woningwaarde van %address% is berekend 🥳

Check uw mail voor het rapport!

success
Wat is mijn huis waard?