Grooten Sloot 8, Bergschenhoek

Omschrijving

Ruime uitgebouwde eengezinswoning met maar liefst vier ruime slaapkamers, twee badkamers en een heerlijke zonnige tuin.

De woning is gelegen in de kindvriendelijke wijk Oosteindsche Ackers. Op loopafstand bevinden zich meerdere scholen en kinderdagverblijven. Het centrum van Bergschenhoek (ca. 5 minuten) en Berkel en Rodenrijs (ca. 10 minuten) liggen op korte fietsafstand. De directe omgeving biedt volop sport- en recreatiemogelijkheden en heeft een goede aansluiting op het openbaar vervoer (busverbinding naar metrostation Rodenrijs en treinstation Lansingerland) en de uitvalswegen A12, A13 en A20.

De pluspunten:
+ 4 ruime slaapkamers
+ 9 zonnepanelen
+ Twee badkamers
+ Airconditioning

Kortom: de perfecte combinatie van een fijne gezinswoning met alle voorzieningen binnen handbereik!

Indeling

Begane grond:
Entree, hal met meterkast, toilet, trapopgang naar de eerste verdieping en toegang tot de woonkamer.

De lichte, tuingerichte woonkamer bevindt zich aan de achterzijde van de woning en is voorzien van een laminaatvloer met vloerverwarming en een praktische trapkast. Via openslaande deuren bereik je de zonnige achtertuin met berging en achterom. De tuin is gelegen op het zuidoosten en beschikt over een zonnescherm.

Aan de voorzijde bevindt zich de open keuken, voorzien van diverse inbouwapparatuur zoals een gasfornuis, afzuigkap, combi-oven, koel-/vriescombinatie en een vaatwasser.

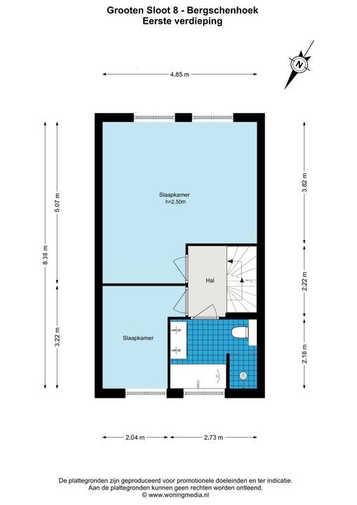
1e verdieping:
Overloop met toegang tot alle vertrekken.
Slaapkamer 1 bevindt zich aan de voorzijde
Slaapkamer 2, ruime ouderslaapkamer bevindt zich aan de achterzijde en is voorzien van airconditioning
De badkamer is uitgerust met een douche, ligbad, dubbele wastafel, elektrische vloerverwarming en toilet.

2e verdieping:
Overloop met airconditioning en toegang tot de 2 slaapkamers en de badkamer
Slaapkamer 3, gelegen aan de voorzijde
Slaapkamer 4, gelegen aan de achterzijde en voorzien van een kunststof dakkapel met elektrisch rolluik.

De tweede badkamer is uitgerust met een douche, toilet, elektrische vloerverwarming en wastafel. Hier bevinden zich tevens de aansluitingen voor de wasmachine en droger.

Bijzonderheden:
- Oplevering in overleg, conform Lijst van Zaken.

Wij nodigen jullie van harte uit om deze woning met eigen ogen te bewonderen.

Alle verstrekte informatie moet beschouwd worden als een uitnodiging tot het doen van een bod of om in onderhandeling te treden. De teksten en impressies zijn bedoeld om een goede indruk te geven van het object. Aan de inhoud ervan is de grootst mogelijke zorg besteed. Desondanks is alle informatie nadrukkelijk onder voorbehoud. Er kunnen geen rechten worden ontleend aan deze woninginformatie.

Koopovereenkomst pas rechtsgeldig na ondertekening:
Een mondelinge overeenstemming tussen de particuliere verkoper en de particuliere koper is niet rechtsgeldig. Met andere woorden: er is geen koop. Er is pas sprake van een rechtsgeldige koop als de particuliere verkoper en de particuliere koper de koopovereenkomst hebben ondertekend. Dit vloeit voort uit artikel 7:2 Burgerlijk Wetboek. Een bevestiging van de mondelinge overeenstemming per e-mail of een toegestuurd concept van de koopovereenkomst wordt overigens niet gezien als een 'ondertekende koopovereenkomst'.

Toelichtingsclausule Meetinstructie:
De woning is conform de Branchebrede Meetinstructie (BBMI) opgemeten. De Meetinstructie is bedoeld om een meer eenduidige manier van meten toe te passen voor het geven van een indicatie van de gebruiksoppervlakte. De Meetinstructie sluit verschillen in meetuitkomsten niet volledig uit, door bijvoorbeeld interpretatieverschillen, afrondingen of beperkingen bij het uitvoeren van de meting.
Wij zijn de makelaar van verkoper. Wij adviseren je jouw eigen makelaar mee te nemen voor jouw belangenbehartiging bij de aankoop van jouw toekomstige huis!

Kenmerken

Aanvaarding
Prijs
€ 550.000 k.k.
Status
Beschikbaar
Oplevering
In overleg
Adres
Grooten Sloot 8
Postcode
2661 SN
Plaats
Bergschenhoek
Bouw
Soort woonhuis
Eengezinswoning, Tussenwoning
Soort bouw
Bestaande bouw
Bouwjaar
1998
Onderhoud binnen
Goed
Onderhoud buiten
Goed
Oppervlakten en inhoud
Woonoppervlakte
ca. 129m²
Perceeloppervlakte
ca. 467m²
Inhoud
ca. 445m³
Indeling
Aantal kamers
5
Aantal slaapkamers
4
Aantal badkamers
2
Aantal verdiepingen
3
Voorzieningen
Mechanische ventilatie, Rolluiken, Buitenzonwering, Zonnepanelen
Energie
Energielabel
A+
Isolatie
Dubbel glas, Volledig geisoleerd
Warm water
C.V.-ketel
Verwarming
C.V.-ketel
Ketel
Intergas (2014, Combi-ketel, Eigendom)
Buitenruimte
Ligging
In woonwijk
Tuin
Achtertuin, Voortuin
Achtertuin
Zuidoost, 33m², 500×650cm
Schuur
Vrijstaand steen

Plattegronden

Bekijk verloop van de zon

Uw browser ondersteunt geen WebGL

Locatie

[{"address": "Grooten Sloot8","zipCode": "2661 SN","city": "Bergschenhoek","lat": 51.9952738,"lng": 4.5089621,"heading": 0,"pitch": 0}]

Wilt u meer informatie of een afspraak maken?

Bel 010 - 785 08 33, mail of gebruik het onderstaande formulier om contact met ons op te nemen.

Uw bericht is naar ons verzonden. Wij nemen zo snel mogelijk contact met u op.

Sorry, we kunnen helaas niet met zekerheid vaststellen of u een mens of een geautomatiseerde bot/spammer bent. Hierdoor kunnen we het formulier dat u heeft ingevuld niet verzenden. Probeer het opnieuw of neem direct contact op met de makelaar via e-mail.

Er is iets mis gegaan met het versturen van het formulier.
Controleer of u alle velden (goed) heeft ingevoerd en probeer het nog een keer.

Bij het verzenden van dit formulier geef ik toestemming mijn gegevens te verwerken op de manier zoals omschreven in het privacy statement.
recaptcha
reCAPTCHA
PrivacyTerms
van

Goedemiddag 👋

Benieuwd naar de waarde van uw huis?

U weet het al binnen 1 minuut. Laten we beginnen!

Wat is de reden van uw aanvraag?
Ik wil graag...

Er zijn meerdere antwoorden mogelijk.

Wanneer wilt u verhuizen?

We zijn er bijna 🎉

Om het rapport op te maken hebben we een aantal gegevens nodig

recaptcha
reCAPTCHA
PrivacyTerms

Uw woningwaarde wordt berekend... 🚀

loading

Bedankt %name%! De woningwaarde van %address% is berekend 🥳

Check uw mail voor het rapport!

success
Wat is mijn huis waard?