Europasingel 110, Bergschenhoek

Omschrijving

Aan de rand van Bergschenhoek vind je deze verrassende eindwoning met voor- en achtertuin. Een heerlijk huis met een lichte woonkamer, keuken, badkamer en 4 slaapkamers.

De woning is gelegen op een prachtige locatie in een kindvriendelijke wijk en op loopafstand van de winkels “Dorp Bergschenhoek”. Ook ligt de woning in de nabije omgeving van scholen, openbaar vervoer en diverse recreatie voorzieningen. De grote steden zoals Rotterdam, Delft, Zoetermeer en Den Haag zijn zowel via het openbaar vervoer (bus en RandstadRail) als via de uitvalswegen (A12, A13, N209 en N472) goed bereikbaar.

De Pluspunten:
+ 4 Slaapkamers;
+ Doodlopende straat;
+ 8 zonnepanelen;
+ Oplevering in overleg, conform lijst van zaken.

Voortuin:
De royale, op het zuidwesten gelegen voortuin is betegeld en biedt parkeergelegenheid op eigen terrein voor 1 auto. De voortuin beschikt over een overkapping en een serre.
Ideaal is ook de grote berging die voorzien is van een lichtvenster en een loopdeur. Hier is ook de opstelplaats van de wasmachine en wasdroger. Hier kan je met gemak enkele fietsen en spullen in kwijt.
Ook is de woning via de berging bereikbaar. De berging is ook voorzien van water elektra en extra krachtstroom.

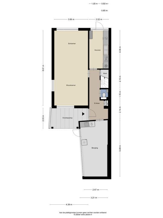
Begane grond:
Entree aan de zijkant van woning.
Hal met een elektrisch rolluik bij de voordeur, toilet, trapopgang naar de eerste verdieping en toegang tot de woonkamer en berging.
De lichte woonkamer is gelegen aan de achterzijde van de woning en is voorzien van mooie marmer vloer met vloerverwarming.
De dichte keuken is voorzien van diverse inbouw apparatuur zoals, spoelbak met mengkraan, vaatwasmachine, oven, magnetron en een 5 -pits gasfornuis.

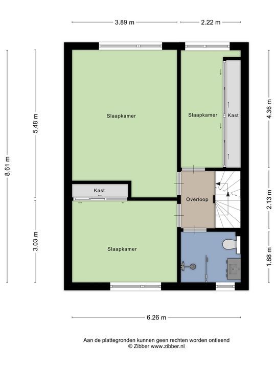
1e verdieping
Ruime overloop welke toegang geeft aan 3 slaapkamers en de badkamer.
2 slaapkamers bevinden zich aan de achterzijde van de woning en hebben uitzicht over het speelplein, groenstroken en speeltuin. Beide kamers zijn voorzien van vaste kasten.
1 slaapkamer en de badkamer bevinden zich aan de voorzijde van de woning en is voorzien van vaste kast, horren en een rolluik. De badkamer is voorzien van een inloopdouche, wastafel met meubel, toilet en een spanplafond.

2e verdieping
Overloop met twee dakkapellen, knieschotten, extra douche en wastafel met meubel, opstelplaats voor de cv ketel en mechanische ventilatie en geeft toegang tot de slaapkamer.
De slaapkamer bevinden zich aan de voorzijde en achterzijde van de woning en is voorzien van knieschotten voor nog extra bergruimte.


Wij nodigen jullie van harte uit om deze woning met eigen ogen te bewonderen.

In de koopovereenkomst worden de volgende extra clausules opgenomen:
- ouderdomsclausule (standaard bij woningen die ouder zijn dan 30 jaar);
- asbestclausule (standaard bij woningen die gebouwd zijn voor 1994);


Alle verstrekte informatie moet beschouwd worden als een uitnodiging tot het doen van een bod of om in onderhandeling te treden. De teksten en impressies zijn bedoeld om een goede indruk te geven van het object. Aan de inhoud ervan is de grootst mogelijke zorg besteed. Desondanks is alle informatie nadrukkelijk onder voorbehoud. Er kunnen geen rechten worden ontleend aan deze woninginformatie.

Koopovereenkomst pas rechtsgeldig na ondertekening:
Een mondelinge overeenstemming tussen de particuliere verkoper en de particuliere koper is niet rechtsgeldig. Met andere woorden: er is geen koop. Er is pas sprake van een rechtsgeldige koop als de particuliere verkoper en de particuliere koper de koopovereenkomst hebben ondertekend. Dit vloeit voort uit artikel 7:2 Burgerlijk Wetboek. Een bevestiging van de mondelinge overeenstemming per e-mail of een toegestuurd concept van de koopovereenkomst wordt overigens niet gezien als een 'ondertekende koopovereenkomst'.

Toelichtingsclausule Meetinstructie:
De woning is conform de Branchebrede Meetinstructie (BBMI) opgemeten. De Meetinstructie is bedoeld om een meer eenduidige manier van meten toe te passen voor het geven van een indicatie van de gebruiksoppervlakte. De Meetinstructie sluit verschillen in meetuitkomsten niet volledig uit, door bijvoorbeeld interpretatieverschillen, afrondingen of beperkingen bij het uitvoeren van de meting.
Wij zijn de makelaar van verkoper. Wij adviseren je jouw eigen makelaar mee te nemen voor jouw belangenbehartiging bij de aankoop van jouw toekomstige huis!

Kenmerken

Aanvaarding
Prijs
€ 550.000 k.k.
Status
Beschikbaar
Oplevering
In overleg
Adres
Europasingel 110
Postcode
2661 BW
Plaats
Bergschenhoek
Bouw
Soort woonhuis
Eengezinswoning, Eindwoning
Soort bouw
Bestaande bouw
Bouwjaar
1969
Onderhoud binnen
Goed
Onderhoud buiten
Goed
Oppervlakten en inhoud
Woonoppervlakte
ca. 166m²
Perceeloppervlakte
ca. 167m²
Inhoud
ca. 589m³
Indeling
Aantal kamers
5
Aantal slaapkamers
4
Aantal badkamers
2
Aantal verdiepingen
3
Voorzieningen
Mechanische ventilatie, Rolluiken, Zonnepanelen
Energie
Energielabel
B
Isolatie
Dakisolatie, Muurisolatie, Vloerisolatie, Gedeeltelijk dubbel glas, Volledig geisoleerd
Warm water
C.V.-ketel
Verwarming
C.V.-ketel
Ketel
Valliant (2015, Combi-ketel, Eigendom)
Buitenruimte
Ligging
In woonwijk, Vrij uitzicht
Tuin
Achtertuin, Voortuin
Voortuin
Zuidwest, 70m², 700×1000cm
Schuur
Inpandig
Garage
Soort garage
Aangebouwd steen
Capaciteit
1

Plattegronden

Bekijk verloop van de zon

Uw browser ondersteunt geen WebGL

Locatie

[{"address": "Europasingel110","zipCode": "2661 BW","city": "Bergschenhoek","lat": 51.9817191,"lng": 4.5007223,"heading": 0,"pitch": 0}]

Wilt u meer informatie of een afspraak maken?

Bel 010 - 785 08 33, mail of gebruik het onderstaande formulier om contact met ons op te nemen.

Uw bericht is naar ons verzonden. Wij nemen zo snel mogelijk contact met u op.

Sorry, we kunnen helaas niet met zekerheid vaststellen of u een mens of een geautomatiseerde bot/spammer bent. Hierdoor kunnen we het formulier dat u heeft ingevuld niet verzenden. Probeer het opnieuw of neem direct contact op met de makelaar via e-mail.

Er is iets mis gegaan met het versturen van het formulier.
Controleer of u alle velden (goed) heeft ingevoerd en probeer het nog een keer.

Bij het verzenden van dit formulier geef ik toestemming mijn gegevens te verwerken op de manier zoals omschreven in het privacy statement.
recaptcha
reCAPTCHA
PrivacyTerms
van

Goedenavond 👋

Benieuwd naar de waarde van uw huis?

U weet het al binnen 1 minuut. Laten we beginnen!

Wat is de reden van uw aanvraag?
Ik wil graag...

Er zijn meerdere antwoorden mogelijk.

Wanneer wilt u verhuizen?

We zijn er bijna 🎉

Om het rapport op te maken hebben we een aantal gegevens nodig

recaptcha
reCAPTCHA
PrivacyTerms

Uw woningwaarde wordt berekend... 🚀

loading

Bedankt %name%! De woningwaarde van %address% is berekend 🥳

Check uw mail voor het rapport!

success
Wat is mijn huis waard?